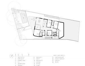
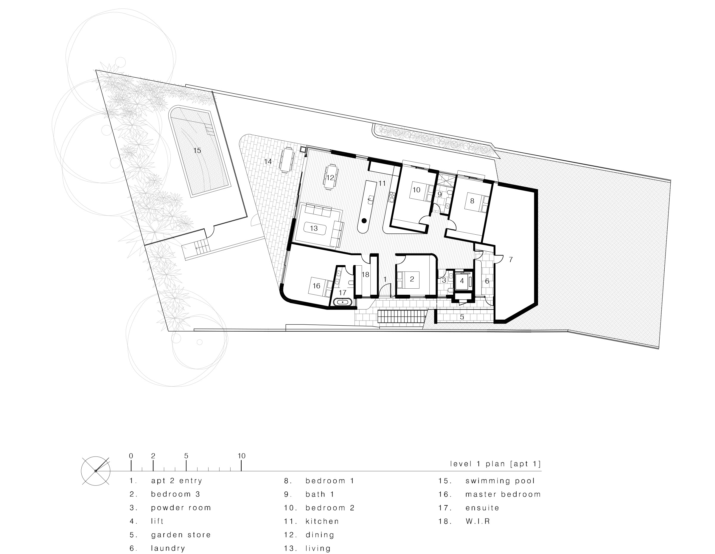
Triplex Apartments (26)