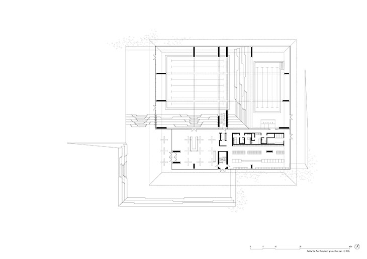
Courtesy of EOTA July 19, 2024, 2:46 pm 0 Comments Leave a Reply Cancel replyYour email address will not be published. Required fields are marked *Comment * Name * Email * Website Save my name, email, and website in this browser for the next time I comment. By using this form you agree with the storage and handling of your data by this website. * See more Previous article ENOTA Unveils Innovative Češča Vas Pool Complex in Ljubljana