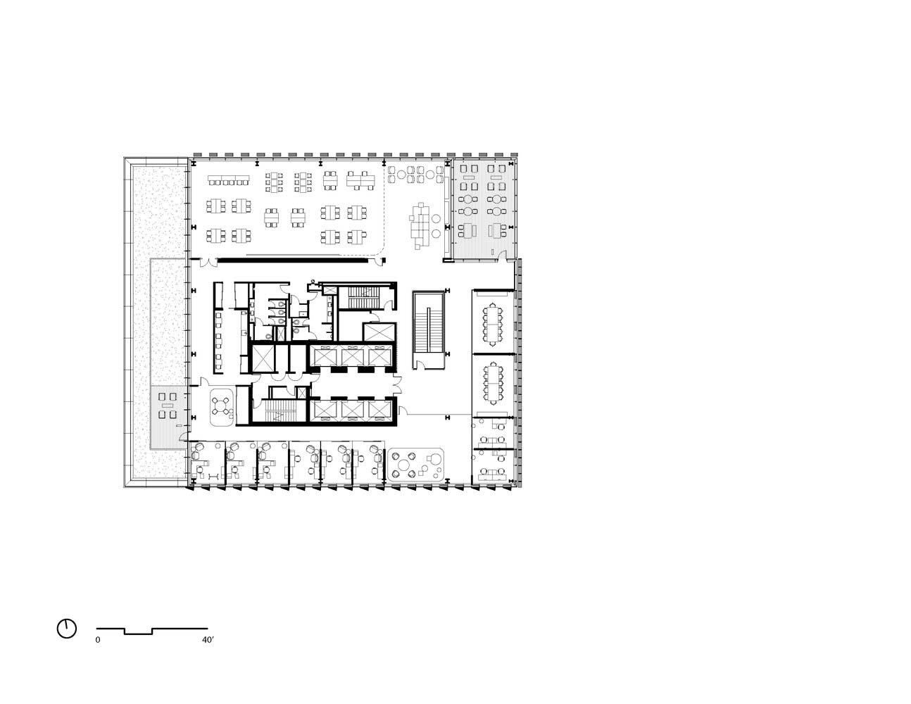
KPMB Architects Boston University Center for Computing & Data Sciences (18)