
Project: The Maison Internationale de Recherche (MIR)
Designed by LAN Architecture
Project Team: LAN, Agence Franck Boutté (HEQ), Batiserf Ingénierie (structure), Michel Forgue (quantity surveyor), J.P. Lamoureux (acoustics), Nicolas Ingénierie (fluids)
Client: Université de Cergy – Pontoise
Surface: 7350 m2
Location: Cergy – Pontoise, France
Website: www.lan-paris.com
LAN Architecture designs the eye catching Maison Internationale de Recherche, a scientific facility truly embodying the state-of-art futuristic sentiment. For more images and architects description continue after the jump:
From the Architects:
The Maison Internationale de Recherche (MIR) project and its site marks the completion of a long redevelopment process: the construction of a new quarter integrating sustainable development into a university campus environment, and complemented by a mixed programme of residences, small businesses and shops. The key to this project lies in its capacity to strike a delicate balance between the urban and symbolic role it has to play and the quality use of its spaces. The site is located at the end of one of the university’s teaching blocks. The plot, although constrained in its potential development by its geographic position, seemed ideal for an iconic architecture expressing the university’s aspirations. Our departure point for developing the project was therefore our response to the challenge of being able, in a single gesture, to contribute to the definition, organisation and overall design of the sector’s urban spaces, and create a formal, typological and architectural unicity fulfilling the specific needs of each of the project’s components.
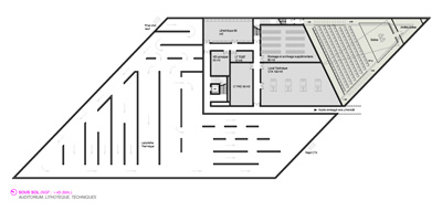
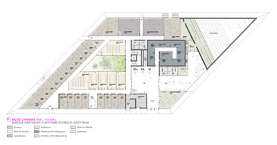
The project is composed of two entities, the Maison Internationale de Recherche building and a residence for visiting researchers. The two buildings are linked by a central garden space incorporating parking areas, a bicycle and motorcycle shed and storage space for the laboratories. To solve the equation of the cohabitation of the project’s different components, we focussed on its programmatic challenges, seeking to define their volumetric expression. Following the project’s specifications to the letter, we arrived quite naturally at a pyramidal form, whose geometry we found provided interesting responses all the challenges involved. The pyramid naturally solved several critical problems: The pyramidal construction enables the facades, positioned around the plot’s perimeter, to progressively distance themselves from surrounding obstacles to benefit from escape views and avoid the shade cast by the south building. We considered the proximity of the offices, situated around the exterior to benefit from natural light, and the laboratory spaces in the middle, to be vital for successful management of research exchanges. The pyramidal form solves the problem of harmonious scale and avoids inordinate size, but also has an iconic dimension directly evoking a universally recognisable and definable archaic form. By materialising this volume by combining a terrace-type configuration and a solar occultation skin, all the peripheral spaces could benefit from the exterior and enhance the quality of the interior spaces. The compactness intrinsic in a pyramid is ideal for a thermically intelligent project. Pursuing this intuitive choice, we explored its potential in greater detail. The short-term occupancy of the residence by visiting researchers guided us towards a typology combining the characteristics of the hotel, house and apartment building. We pursued this hybrid strategy in the knowledge that we had to provide quality private living conditions for all residents without neglecting the thermal and energy-performance concerns inherent in communal structures. Opting for a stacking configuration, we superimposed separate houses around a planted, south-facing courtyard giving on to a minor road. The project’s heart is bioclimatic atrium that enables life within the building to adapt to the seasons and providing an acoustic filter. Contrasting with the simplicity of the pyramidal form, the facades are richly and intricately structured. The MIR is clad with steel mesh, a precision material enabling high-quality management of light and transparency and creating a kinetic architecture, constantly changing on the outside as one viewpoint shifts. The residence, on the contrary, is clad with a wooden sunscreen evoking the domestic, convivial environment inside.
The facade consists of two superimposed envelopes. The outer envelope acts as a sunscreen and enables residents to filter vision from the outside. The inner facade is simply rendered, with nuances of different whites creating subtly shifting moiré effects behind the wood.

























