
A3— Advanced Architecture Apartments are harmoniously incorporated into the context of their environment. Two starting points—the mountain and the city, set the overall architectural concept. The plot reserved for A3 is in the border area, where the city and the mountain overflow into one. Lines and clear borders are blurred in smooth and soft forms, allowing everyone to determine exactly where and how to perceive shape and space. Situated in one of the most contemporary areas of Sofia—Bulgaria Blvd., A3 is designed to be relevant, contextual and avant-garde. Some of the most modern and interesting buildings in Sofia are exactly here. On the other hand, a very dominant element of the environment is the mountain, peeking in the future building. The combination of these two powerful components results in a dynamic and modern shape of the building, without harming the function.

It is divided into five volumes, linked in a common ensemble that defines its final shape. Each of the volumes is outlined with soft and elegant forms which let everyone associate them with their own imagination. It is easy to correlate the elements to five mountain peaks or a silhouette of a family with three children, but the deeper concept is to stimulate you define yourself as becoming involved with the building. To become the author of a new form, to be inspired.
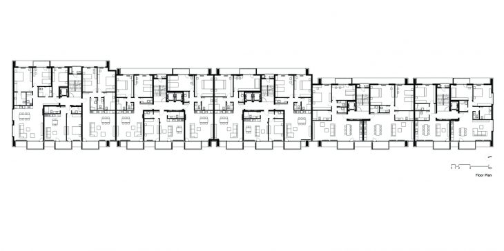
The creation of A3 flows from the inside to the outside, the design strictly follows the function, which is the approach the studio considers correct for residential building design. The uncompromising function complies fully with the investor program. There are straight orthogonal forms in the layout, which bring comfort and flexibility in the interior space organization. The 100-meter-long building is divided in 5 blocks (entrances) each with its own vertical communication. The first two sections – A and B—have two apartments on each floor, while V, G and D entrances – three apartments on each floor. The small number of apartments per floor increases the feeling of luxury living and provide more privacy. There are 158 dwellings in the building, each with excellent function and favourable geographical position. Every living room is situated east-southeast, richly glazed, facing Vitosha Mountain and the cityscape.
The ground floor is designed for commercial use—shops with sizes from 50 to 100 square meters. Car parking is assured by two underground levels and the entire free aboveground area is planned for landscaping and recreation.
The design of A3 contains strict elegance and soft organic forms. The building is perceived equally well in the overall silhouette and from different angles. The feeling of elegance and sophistication is emphasized by the facade materials—glass and fibreC by Rieder. The glass is in two colours—transparent and Graffiti Lacobel.
fibreC is an innovative, high-technology material, made of glass-fiber concrete, which gives unlimited options in forming. Besides aesthetics and functionality the materials provide durability and easy maintenance of the building.
Visit STARH

