
Project: Saemangum Exhibition Center
Designed by poly.m.ur
Location: Buan, Korea
Website: polymur.com
Unusual concept gives the impressive results for Saemangum Exhibition Center proposal by poly.m.ur practice. For more continue after the jump:
About Design:
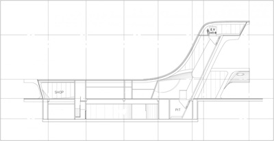
The ‘breathable roof’, is penetrated by lights, air, movements, visual connections, vegetation, etc. providing continuous interactivity between inside and outside, and between floors.
The building consists of exhibition hall, café, theatre, and the viewing tower. While most of the exhibition program takes place on the basement level, the ground level becomes an open public space providing panoramic view of the sea in front with occasional penetration of exterior by small courtyards which lead up to the roof level.
The roof which is covered with grass and flower gardens replaces the ground lost by the building and becomes a new ground floor.
Source ArchDaily. *














