
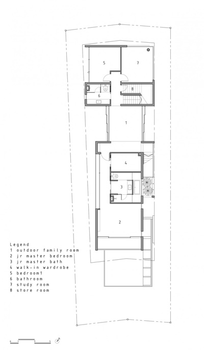
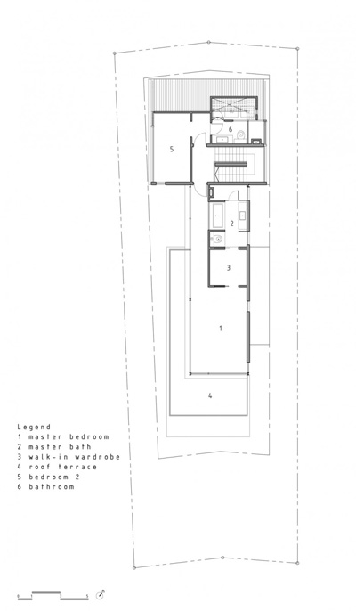
Project: Alnwick Road House
Designed by Park + Associates
Location: Alnwick Road, Singapore
Website: www.parkassociates.com.sg
Contemporary shaped design lines coming from Park + Associates create the outstanding Alnwick Road family home in Singapore.
Source Contemporist. *













One Comment
One Ping
Pingback:Park + Associates' Alnwick Road House