
Interior Studio Bondarenko Design designed this stunning loft apartment interior in Kharkiv, Ukraine. Take a look at the complete story after the jump.
From the architects:
Four Textures
At our very first meeting with a client it was clear: an interesting creative project waited for us. The owner of an apartment worked in a stylish office of an IT company. He was inspired by travels throughout the world, showed us references in grunge style and was prepared for bold decisions. We caught the wave and got down to work.
For the project of the apartment we used only four natural materials — bricks, concrete, metal and wood; and four colors — terracotta, white, gray and black; mainly designer’s items and furniture and joint efforts with the client of course.
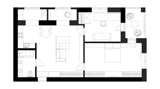
2.6 meter high ceilings were the first pitfall we encountered. Instead of wide open spaces, we risked getting a creepy box, so we opted out of making the paneled ceiling and left it as is —exposed concrete with wiring. This helped us keep the height of ceilings and get the first decor solution.
The lack of daylight was a second issue. The apartment windows faced north, and a neighboring building was another obstacle for light beams. To increase the flow of light into a living room, we removed a standard balcony partition, made low window sills and dismantled openings for the access to an enclosed balcony. We insulated an enclosed balcony, equipped it with some kitchen appliances, and turned it into a small cozy office. We frame the openings with metal sheets and received a second specific decorative element.
We immediately rejected a standard kitchen at the request of the apartment owner. Instead, we mounted a hanging bar counter from a shabby and pleasant to the touch wood, which we fenced with a metal mesh. Metal also appeared in the kitchen furniture frame. Moreover, a metal ventilation duct was used as a cover for an air extraction system. Treating non-standard things as decor has already become our signature, but here it was a third specific decision.
RELATED: FIND MORE IMPRESSIVE PROJECTS FROM THE UKRAINE
In the entrance area of the apartment we placed an air closet with the terracotta brickwork visible. Immediately at the door there is a pouf to change shoes, above it there is a familiar mesh to hang shoulders with clothes. The bottom of the closet is open for shoes.
Style, colors and materials in the bathroom were kept. At the client’s request, we placed two bowls for washing, and provided correct lighting based on our best knowledge. Suspension devices for lamps were placed to illuminate a face from two sides evenly with no distortions.
The bedroom became a room with two laconic elements — a soaring bed and a functional sconce from Flos. A decorative illumination is built over the head of the bed: it emphasizes the texture of bricks and enhances the effect of airiness under the bed.
Despite metal rough elements, the apartment has nice wooden parquet, a cozy texture of wood in the office and in the kitchen, an abundance of different sources of light that create coziness. And in the end, it is a place where you want to return.















Find more projects by Studio Bondarenko Design: bondarenkodesign.com
Images are courtesy of Bondarenko Design

