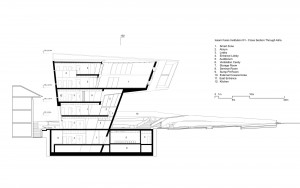
IFI Zaha Hadid 20 June 12, 2014, 4:24 pm Comments Off on IFI Zaha Hadid 20 See more Previous article Issam Fares Institute for Public Policy and International Affairs at the American University of Beirut