
Yebin Design were in charge of designing the interior of this stunning retail space in Shenzhen, China. The space features a retail space in the basement and a bar/cafe on the ground floor. Take a look at the complete story after the jump.
RELATED: FIND MORE IMPRESSIVE PROJECTS FROM CHINA
From the architects: Hangzhou based interior practice Yebin Design has designed aneye-catching retail space in the fastest developing city Shenzhen, China. Set against a backdrop of old residential buildings of the 1990s, Conemoting Market is the first select shop with cafe and bar in this area.
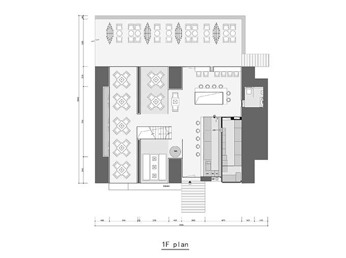
After renovation, the basement of five meters high serves as a retail space displaying self-owned brand clothesand selected products and the ground floor serves as cafe in the daytime and bar in the evening. The transparent orange and redtempered glassesdivide the dining area, building a psychedelic visual effect, just like a 4D maze of market. The warm colours are highlighted by the contrast with the cold silver façade, making it standing out in the old community.
A tall giraffe installation stands through both the floors. Its cute face can be seen in the café and its feet are in the underground floor. The entire retail space is wrapped bymetallic silver, creating an upscale industrial art atmosphere. All the finishes and products such as pipes and huge hand-like chair are custom made.
As most of the post-90s generation in China are spending more time on the internet, stores have evolved from a simple sales space into a lifestyle carrier, and then transformed into a social place. Nowadays, stores are no longer just displaying and selling goods, they are online physical space.In Conemoting Market, display and counter sales can already be handled as a supplementary function of the online stores. It is a physical space created for the online space, where the self-expression desire from the young generation can be released, the passion and inclusiveness of the old city community is ignited, meanwhile, it reflects the progress of the diversification of commercial ecology in Chinese cities.


























































Projectname?ConemotingMarket
Design firm?Yebin Design – www.yebindesign.com
Project location: Shenzhen, China
Chief Designer: Ye Bin
Design team: Yang Shan, Chen Chenxi
Photographer?Xiaoyun
Area?580sqm

