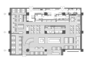
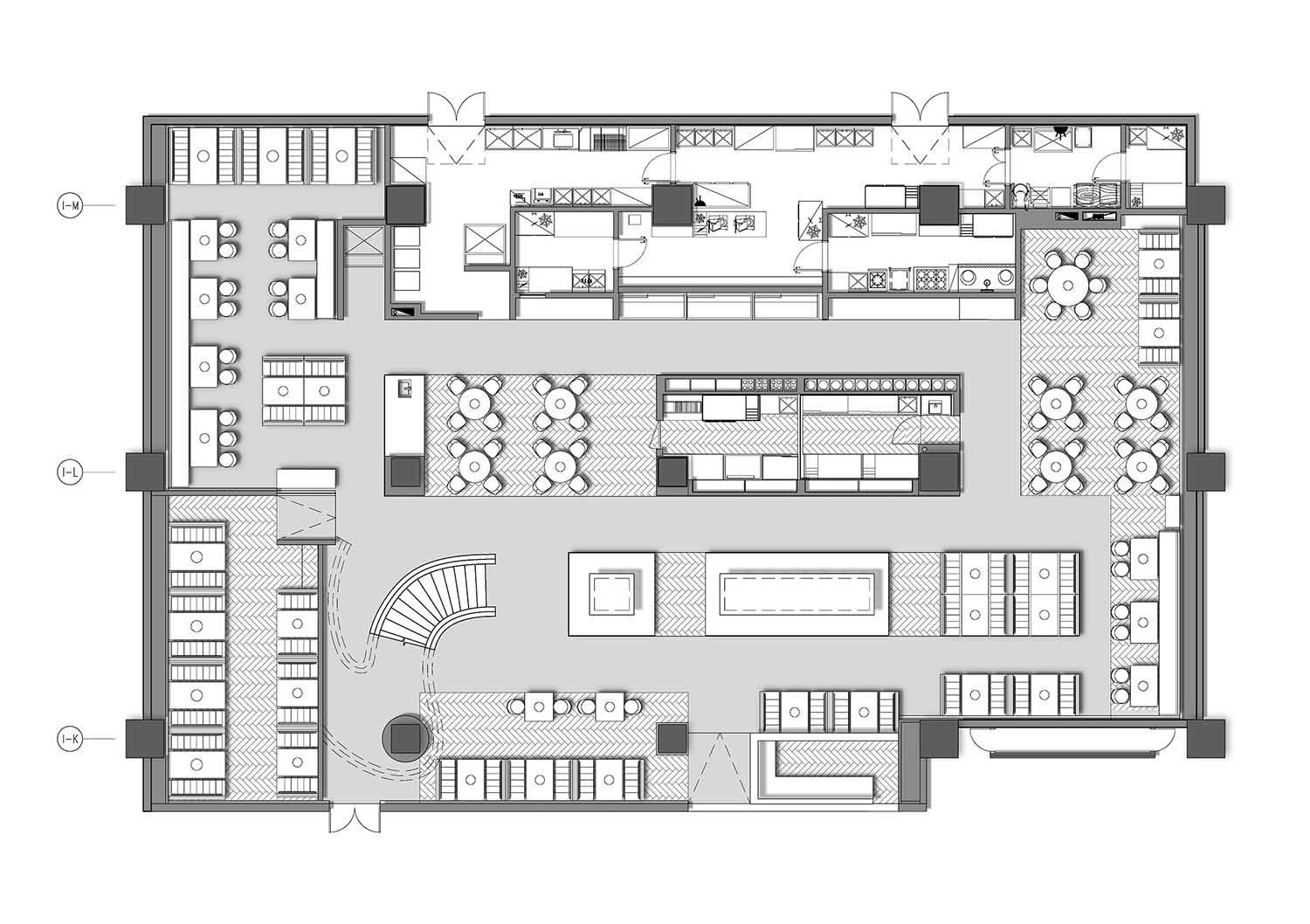
FUNUN LAB (16) July 6, 2023, 1:56 pm Comments Off on FUNUN LAB (16) See more Previous article Zhongmeishan self-service BBQ PLUS by FUNUN LAB