
Project: Downtown LA Hotel
	Designed by XTEN Architecture
	Principals: Monika Haefelfinger, SIA & Austin Kelly, AIA
	Project Team: Scott Utterstrom, Qichen Cao, Matthew Rosenberg, Dayuan Fu, Katie Green, Michael Hasey, Xian Chi
	Project Area: 65 000 sqf
	Location: Los Angeles, California, USA
	Website: xtenarchitecture.com
	XTEN Architecture designs the Downton LA Hotel project shaped in a unique way as a monolithic concrete structure, for more images along with architects description continue after the jump:
From the Architects:
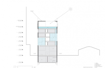
This new 65,000sf hotel is conceived as a monolithic concrete structure, carved by a system of slots and slices that bring light, air and views deep into the building.
The site is an infill parcel in downtown Los Angeles which measures just 50×150 feet. The hotel is freestanding, surrounded on all sides by alleys and streets. This allows for slots to be cut into the facade, which contrast with and dematerialize the otherwise monolithic quality of the building.
The lobby is an abstract, multi-use gallery/ performance space. Bricks salvaged from the existing building on the parcel form the floor. The East wall is shaped by three openings: the projecting glass box of the artist-in-residence studio; the center passage to the main lobby and restaurant; and a multistory slot through the hotel to the exterior.
The rooms are other program elements are conceived as solid volumes which float freely within the structural frame provided by the overall concrete monolith. These volumes will be clad in wood, glass and white plaster.
The slots developed as a way to create openings that would otherwise be impossible on the property line. The glass enclosure line is set variably 5 to 20 feet back from the concrete perimeter to comply with fire codes. The double height slots multiply the facades and provide natural light, fresh air, views to the city, terraces, areas for plantings and art installations.
From the interior, the building is light, airy, with views from everywhere through the building to landscaping, other people, other parts of the building. The strategy cuts holes in the otherwise solid fabric of the building, exposing one use to another, creating moments of juxtaposition and unanticipated multi-story views through the building.
Two subterranean bars are accessed secretly; one from an alley loading dock, one through an elevator service room. A public restaurant slices through the middle of the building, a compressed space that opens the width of the site to the passageways around the site.
The architectural language of the slots wrap up and over the roof deck, providing solar shade and privacy from the taller adjacent buildings. These large openings in the concrete shell frame panoramic vistas South and West over the Los Angeles.
The informal, unfinished quality of the concrete is intentional and contrasts with the precision of the building geometry. The rough concrete also relates to the other salvaged and reclaimed materials used throughout the hotel. Details are rendered in rich woods, blackened steel and polished glass.
A rooftop infinity pool extends the full width of the Western facade, creating a unique vantage point from which to take in the city, the sunset and the horizon.
 
					 
						













