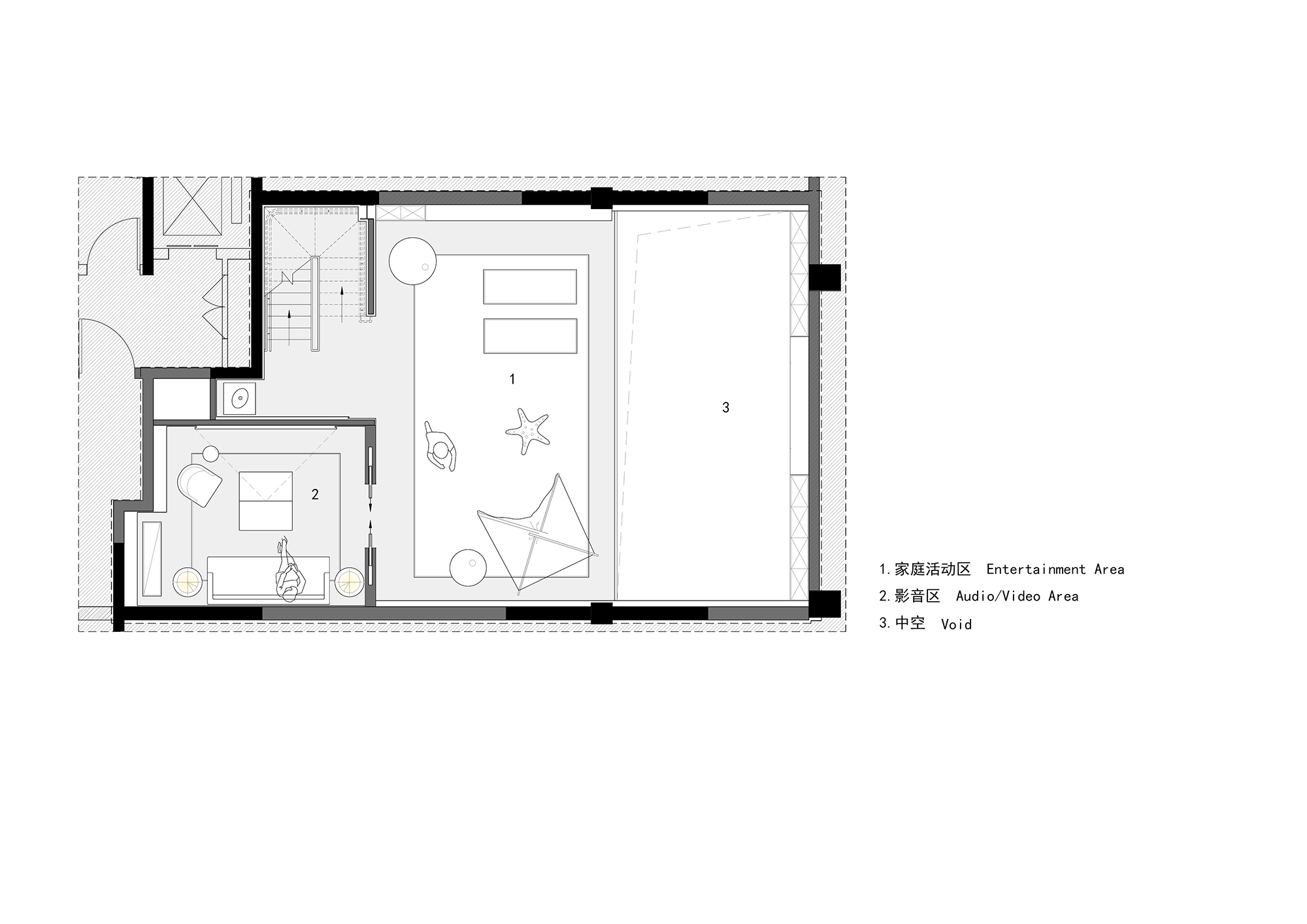
Underground Mezzanine Plan