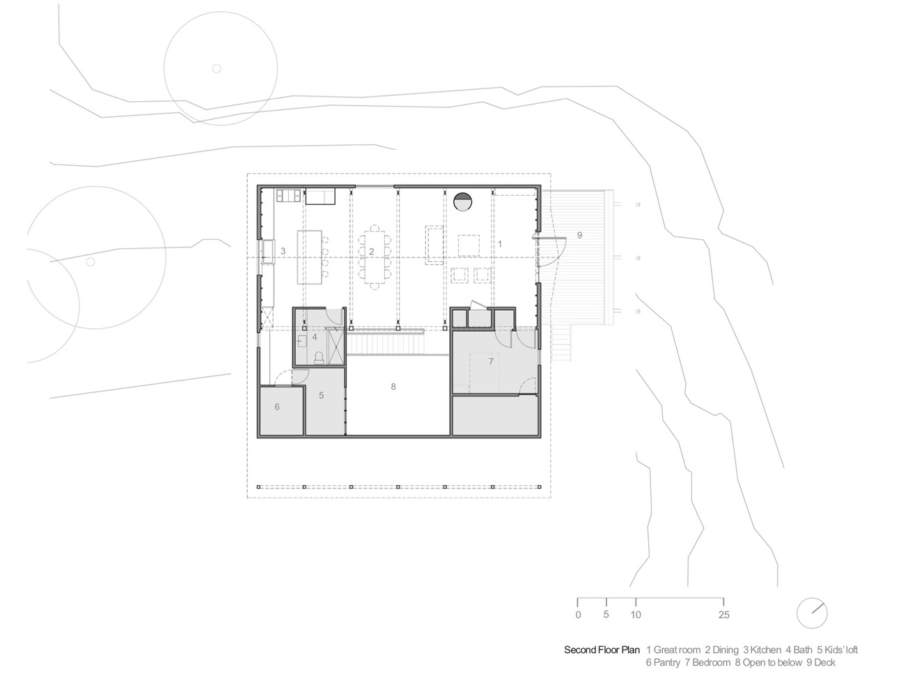
x Canyon Barn (3)