
Koning Eizenberg Architecture designed this stunning private residence located in Santa Monica, United States, in 2015. Take a look at the complete story after the jump.

















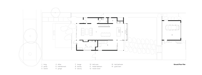
From the architects: This suburban home, designed for a Planning Commissioner and her family, offers a relaxed connection to the street and provides an amplified perception of space on a typical 50’x 150’ lot by organizing expansive views through the length of the house. A barn-shaped roof emerged from tracing the maximum permitted planning envelope, producing a chance rural reference that fits both the family’s background and interest in the informal, modest and communal. A Quaker bonnet, seen in an old family portrait, inspired the shaping of the guesthouse roof, which backdrops the series of indoor and outdoor spaces. Movable privacy/sun control screens between house and yard modify views inside and out at different times of the day.
Sustainability. Built to comply with both strict Santa Monica standards and the architects’ and owners’ dedication to responsible design, See-Through House employs efficient and sustainable strategies for energy production and consumption, daylighting, airflow and water usage. Photovoltaic panels line the south-facing roof at an optimized angle. Daylighting from skylights combined with vast, high energy performance glazing alleviates the need for artificial daytime lighting and LED lighting systems to provide energy efficient evening light.
RELATED: FIND MORE IMPRESSIVE PROJECTS FROM THE UNITED STATES
Sliding oversized wooden panels on the west face of the house and eastern balcony provide passive shading to reduce solar gain while allowing ventilation. Ventilation panels installed throughout the house further passive ventilation, while operable skylights on the second-floor discharge hot air to complement this system. Slab on grade construction further enhances cooling efficiency through natural geothermic properties.
Draught tolerant planting combined with water-efficient landscaping and irrigation allows the house to irrigate multiple gardens without acting as a water drain. An urban runoff drainage infiltration pit and rain cistern provide water reuse for irrigation, and low flush low flow toilets further reduce the house’s potable water usage. Applied finishes are all low VOC, and both construction waste and deconstruction materials were recycled.
Photography by Eric Staudenmaier
Find more projects by Koning Eizenberg Architecture: www.kearch.com

