Project: Beijing Green Visitor Center
Designed by JDS Architects
Project Leader: Charlotte Lieske
JDS Partner in Charge: Julien de Smedt, Andrew Griffin
Design Team: Cristina Marigo, Iria Carreira, Amanda Ripoll, Mathilde Claus, Byeongmoo Moon
Team: JDS, Transsolar, MUDI
Client: Vanke
Size: 5000 m2
Location: Beijing, China
Website: jdsa.eu
Project for Beijing Green Visitor Center coming from the drawing board of JDS Architects.
From the Architects:
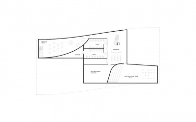
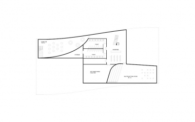
The Beijing Welcome Centre is a project for a gateway exhibition building for a new sustainable industry park in Beijing. The building is based on the principle of manipulating a box envelope for environmental and contextual concerns in order to make a building which is low tech and low cost. The first manipulation is to join the existing car park to the R&D centre and the park loop. This allows the public to walk over the building and experience the park in a different height, first getting an overview before descending into it. The second series of manipulations are based around sustainability, blocking the cold north Beijing winter wind, promoting the cool southeast summer wind, creating shadow to the south and moveable sun shading / solar cells to the east and west. The building becomes a result of a series of pragmatic scientific operations making a piece of architecture which is ingrained in the site and promotes the notion of low tech sustainability.
