
Various Associates designed this uniquely organized buyer’s store, in an almost church like minimalist design unlike traditional brandstores. The interior os designed symetrically and offers a long straight showcase for jewelry in the middle of the layout and luxury haute couture clothing on the sides illuminated by soft lighting to emphasize the different textures. Take a look at the complete story after the jump.





























From the architects: From the architectural dimension, the store is designed to be a medium where customers can explore the relation between body and space. The layout is pure and simple, with a symbolic “milestone” placed at the center right on the central-axis. The “milestone” holds an obvious implication – a new starting point for SND to move towards an internationally representative buyer’s shop. In addition, the church-like architectural form serve as an embodiment of SND’s brand belief, which is to strike a balance between keeping the brand personality and catching on the fashion trends. The open display area on both sides resembles a square. Through its unique layout, customers can know clearly the routes and can view every product in display while walking, offering them a chance to select and compare goods easily. The design team had not only take into consideration the site’s own narrow and linear characteristics, but also the brand’s functional requirements for art, behavior, and display. Seen from any angle outside the shop, its hierarchical layout and the texture of materials have enabled the shop to be a memorable landscape for any passers-by.
RELATED: FIND MORE IMPRESSIVE PROJECTS FROM CHINA
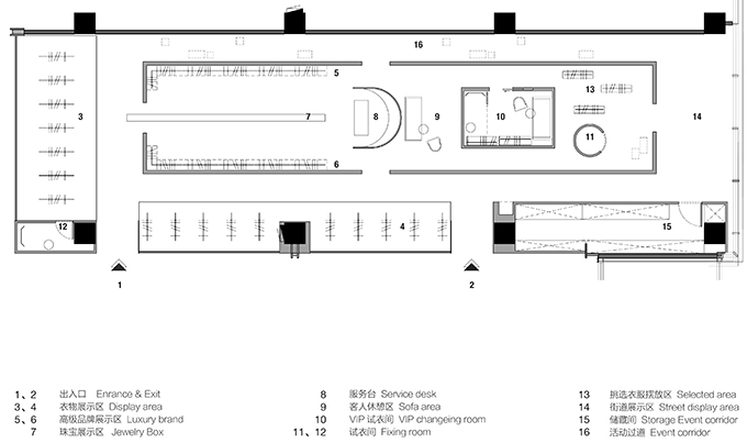
Within the cube, Various Associates continues the idea of symmetric design, offering the interior space a scared and ceremonial sense. Jewelry is displayed in the long straight showcase right in the middle, which is easy for customers to choose carefully. Luxury brands of haute couture are displayed in both sides, and are illuminated with professional soft lightening so as to show the texture of the clothes. The reception desk is curved and stands at the heart of the space, dividing the display area and the rest area in the cube while offering timely services to customers in need.
In this project, Various Associates have overcome the conventional thinking mode of traditional brand stores. Not only the products have been fully displayed, the brand personality of SND was also highlighted in its own unique design language. The size of window display area has been maximized to the largest extent, while at the same time, the flexibility and diversity of product display were retained, which offered more possibilities for brand activities and presentations follow up. This innovative design by Various Associates marks the achievement of quality and visual performance, and realized the association of brand space with urban life.
Project name: SND
Design firm: Various Associates various-associates.com
Main designer: Dongzi Yang
Project leader: Qianyi Lin
Designer team: Dongzi Yang, Jingjing Tang
Project location: Shin Kong Place, Chongqing, China
Completion time: 2019.03
Area: 288 sqm
Professional lighting supplier: Viabizzuno
Photographs: Shao Feng
What do you think about the project? Feel free to leave a comment below.

