Project: European Spallation Source (ESS)
Designed by Henning Larsen Architects, COBE and SLA
Engineering: Buro Happold, NNE Pharmaplan, Transsolar
Location: Lund, Sweden
Website: www.henninglarsen.com
Henning Larsen Architects share with us their winning proposal design in the international competition for European Spallation Source (ESS) project in Lund, Sweden. ESS will become the world's largest and most advanced facility for neutron-based research.
Find more info about the project after the break:
From the Architects:
“Researchers will travel to Lund from every corner of the world. At ESS, they will become part of a global research community. They will require space for concentrated work, but they will also need places where they can meet other researchers”, says Jacob Kurek, Partner and Architect, Henning Larsen Architects. “In the atriums found in the buildings, they will be able to meet each other informally, inspire each other, exchange ideas and share their knowledge.”
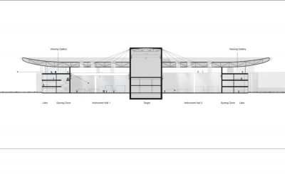
It will also be possible to hold meetings outdoors. Analyses of wind conditions will contribute to creating good opportunities for staying outdoors. ESS will be a research campus with a more than 600 metres long proton accelerator and a 180 metres long hall in which the protons hit a target and send neutrons off to a number of halls with measuring instruments. In the instruments, the neutrons are used to analyse the materials that the researchers are studying. ESS will also contain a number of facilities for researchers: laboratories, offices and a lecture hall. A total of 100,000 m2 will be built.
The research centre will be partly open to the public. A visitors' centre will be established on the site, where visitors can gain an insight into the research activities taking place at ESS. The visitors' centre will make it possible to present changing exhibitions.
“Being located at the centre of the Oresund Region, ESS may be one of the most important building complexes to be built here for many years. It is a complex that will deliver research results with enormous potentials for the future and which will set an entirely new agenda for Lund as a knowledge city and for the Oresund Region as a global research destination. It is therefore a unique and exciting task to contribute to the design of this project,” says Dan Stubbergaard, Architect and Owner of COBE.
Rainwater from the ESS area will be directed to low-lying areas, which will become an attraction in the local area due to their lush diversity of flowers, insects and birds.
“Just as the international science hub that will be developed, the surface of the landscape will be an interwoven patchwork of different fields and meadows”, says Stig L. Andersson, Creative Director at SLA. “Wild-growing vegetation and fences provide spatial distinction as well as safety barriers. All rainwater management will be handled by a new wetland landscape of lakes, marshes and meadows that also create a dynamic and ever-changing visual and spatial connection between ESS, Max IV and Lund Science Village.”
Research at ESS is expected to commence in 2019, while the entire facility will be completed by 2025. ESS will be an accelerator-based neutron research laboratory that will be far more powerful than existing facilities. It is expected that between 2,000 and 4,000 researchers will use the facilities each year. The technology can be used for research in everything from medicine to archaeology and sustainable energy sources.
In a statement about the winning proposal, ESS writes: “The proposal shows great skill and sensitivity in creating in-between spaces and a strong urban context. There is strength in the campus concept […] There is a human scale represented as well as a dramatic scale in the size of the roof structure.”
The international design competition was conducted during the second half of 2012 and the winning proposal was selected in February 2013. Apart from the winning team, four other teams participated, including Foster + Partners, Mecanoo, Benthem Crouwel, West8, HOK and BIG. The latter was among the last two projects in the process. In the assessment of the different proposals, the judges placed emphasis on the architectural vision, flexibility, financial and functional feasibility, security, sustainability, environmental impact and processual understanding.

