
The Bamboo house is situated on a slightly sloping land in the residential part of Brno. It is inspired by this garden, its optical interconnection and the final lightness. It more or less ignores the surrounding modern development.It is built for the lifestyle of the residents and it is influenced by their relationship with both the tangible and spiritual values of the East. Basic compositional element is the horizontal.
The concept of the house clearly separates individual functional levels and building trades. The house is composed by a confessed carrier construction and their lighter fillers.The carrier part consists of iron-concrete skeleton with pillars of square section supporting monolithic ceiling slabs, which are significantly excessed by consoled parts.
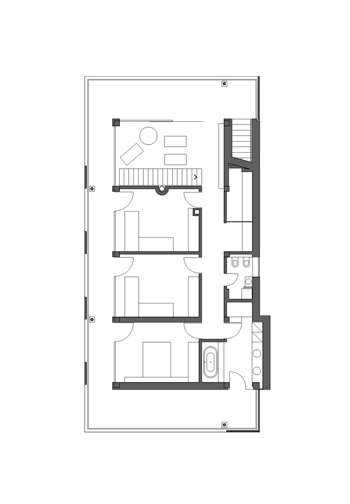
This cubic house with a total size of 10×20 metres is a one generation house with a double garage and facilities. The social part of the house is situated on the ground floor whereas the resting part is on the floor.The floor is walkable through with city views. Porches are around the walls of the house and they have proved to be a great residential element and the screen from the external environment.
The basic materials used are concrete, glass, black metal and wood.

Architects: Atelier Stepan
Location: Brno, Czech Republic
Architect in Charge: Marek Jan Stepan
Project Year: 2009
Photographs: Št?pán Vrzala

