Project: Skyve
Designed by FARM Architect
Project Team: Team: Peter Sim, Selwyn Low, Lee Hui Lian, Oh Wenxin
Location: Singapore
Website: www.farm.sg
Located in Singapore, interior design for Skyve comes from FARM Architect studio.
From the Architects:
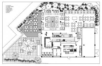
Who hasn't, in their school-going days, skip a class or two, just to sleep in late or catch a movie on a quiet afternoon? In that spirit of playfulness and remembrances of lulling languid days, the design for Skyve Bistro was born. The bistro, thus named, also harks back to the compounds' previous usage as a secondary school.
The bistro's interior is experienced in multiple layers, and can be separated into two main parts – the main dining area and the bar & drinks section. In response to the client's brief for a flexible spatial arrangement, folding metal screens are used to segregate the areas, but when collapsed together, opens into one huge space. And on closer look, these metal screens are cut in patterns inspired by traditional floor tile motifs.
Here, materials and choice of furnishings are selected and reinterpreted to evoke a laid-back old school charm. Wired glass, usually used as window louvres, now becomes tabletop surfaces. Dining chairs are made to look like old wooden classroom chairs. These are complemented with the terrazzo flooring and glass pendant lamps. Specially noteworthy is the commission of local furniture group Bureau, for designing a set of whimsical rocking chairs and other school canteen-inspired seating. We were told the rocking chairs are very irresistible, especially after a drink or two.
The theme of schooling and skyving extends to the overall branding and collaterals too. The menus look like a thick hardcover tome of a graduate thesis's book, whilst the write-up within is sprinkled playfully with notes and gibberish, all with good doses of humour ad well-intended irony.
Source ArchDaily. *

