
Sergey Makhno Architects designed the interiors for the DTEK Academy in Kyiv, UNIT.City, a business platform that specializes in corporate education. Take a look at the complete story after the jump.




















































From the architects:
Bio
What: The implementation of the interior design for a business platform that specializes in corporate education
Where: Kyiv, UNIT.City
How: 6 months from an idea to the first student
The main idea: space that fills with energy
Area: 3 234 sq. m.
Client
DTEK is a Ukrainian energy giant, the largest private investor in the energy sector of the country. In 2018 the investments were at the amount of 20 billion UAH. The company employs 70 thousand employees. One of the main directions is the DTEK Academy business platform, which specializes in corporate education and training of state sector employees. For the second direction, it received the “gold” of Global CCU Award 2019 in Brazil.
Team
Architects: Sergey Makhno, Artem Meshchankin, Oleksandr Makhno, Oleksandr Kovpak, Ihor Tykhyi, Maryna Hrechko, Olha Sobchyshyna, Serhii Filonchuk, Kostiantyn Svetlykh, Viktor Zakharchenko, Polina Volkova
Usually, we work in teams of 2-3 specialists: an architect or interior designer plus design engineer. But due to the strict deadline, we had to call for heavyweights. Together we defined the stylistic direction, we argued, discussed the options, lingered around when others have already left. And together we were glad when the ideas were a success. Sometimes it took several hours from the moment of the first visualization to submitting drawings directly to the construction.
What we needed to do
KAN development company was responsible for constructing a new building in Ukrainian Silicon Valley UNIT.City for DTEK Academy. When in the summer of 2018 Sergey Makhno Architects team met the representatives of the Academy DTEK only four floors out six were ready. Sergey, with all his optimism and vigor, stated a sentence: “Year and no less.” To what customers said: “We have the opening in 6 months. Six months and no day more”.
The client is accustomed to global decisions, and we are accustomed to challenges. The design project had to be echoed with the values of the company, to be ecological and durable as more than 200 000 students visit the Academy throughout the year. Audiences must be mobile and adapt to various tasks and the number of listeners. So the space doesn’t annoy you, and the process of education is a pure thrill.
And, let us remind you, it’s just 6 months we had.
What we really did
We immodestly believe that nature is our main co-author, and it is the most talented architect ever. The interior design was planned as its continuation as if the interior was created by nature but with the access to the latest energy-efficient technologies.
We sincerely believe that the energy of space is one of the most powerful ones. If the interior meets the set goals, if it is integral — it literally “recharges”.
Water — with what everything begins and ends
We slide by the glass facade of the building, which blushes in the sunny weather — the windows are covered with a red membrane. The stuffy construction heat is all around — UNIT.City continues to grow in leaps and bounds.
The roundabout door seems to dispel a heavy water mass and now we’re in the life-giving underwater kingdom. Large-scale tile on the floor is a step by a water glider. Yes, you can walk on water — everything you can imagine is real. Hall of the academy exalts a human, its character, and will.
The interior is quite rich: the vertical gardens compete in the majesty with wooden panels on the walls, the led-tape hurries across the mirrored ceiling, the lighting sculpture tries to break through to the 2nd floor, while the ceramic canoes — the author’s tile from Sergey Makhno Architects — set sail to the reception desk. But with that, the design remains imperceptible, it does not distract attention — because the main thing here is a human.
Behind the wall of the reception desk, there is a coworking library. Huge ears of authors Elephants armchairs by Sergey Makhno Architects carefully protect personal space but do not cut you off from the outside world. The windows to the ceiling and glass lamps by Expolight. Here, the light runs wild. Metal waves of the wall and smooth pebbles on the coast.
Also on the first floor, there is a cafe with access to the terrace. There’s a zen garden under the ceiling — among the blossom of flowers, ceramic Crust lamps by Sergey Makhno sprinkle the warmth all around the space. When having a cup of coffee, you have a chance to meditate and cleanse the consciousness for future affairs, thoughts, and knowledge.
Metal and wood that unite
We go to the second floor by strict stairs, sewn in metal and wood — the unifying elements of the entire space. The sheets of stainless steel are 0,8 mm thick — they are about the flexibility that makes the modern world a little less tough.
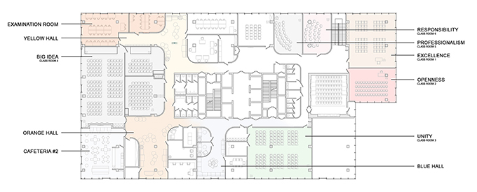
And again, a wave of freshness — the blue, gold sands and dozens of suns. We go to the first audience of Excellence (the names reflect the values of the company). Suspended brass ceilings aim at the goal, and columns are a symbol of experience. Peaceful dark gray and always young black.
The audience next door — Openness — is the openness to changes. On a sunny day, a translucent airy room is flooded with the red light.
DTEK Academy is the first project in Ukraine that has integrated complex management and automation of the space using Crestron technology. The solution was implemented by the Ukrainian company D8. At the output, we have a single intelligent system that allows you to manage the spaces both locally and through the Internet.
Down the hall, there’s a mobile audience Unity. Thanks to the noise-isolation curtains, the room can be divided into two smaller ones or can be combined into one large one. Due to the Crestron automation, the mode is selected by touch and the control system understands which source for the presentation it is connected to, and where the event is held. The furniture choice is also very simple. With the Stalcon mobile constructions, you can change the seating zones in 5 minutes.
On the wall — the author’s tile Tetrapod, the owner of Red Dot Award-2017. The design was inspired by few-ton concrete structures that protect the shores from the destructive waves. One Tetrapod had the courage to stand out and now everyone is trying to touch it, we even had to cover it with a protective layer.
The largest audience — Big Idea — for big things. Mobile internal walls can change the space beyond recognition. The right zoning is an important success factor for effective learning.
To manage the “sun”, at least artificial is also possible. You set the desired level of lighting and leave the rest to the automated control system: it will open/ close the curtains, increase/ decrease the illumination, and focus on the important.
There’s one more coffee-point and the blue, the blue. By the way, the furniture and the floor are also delicious. They are covered with a modern eco-friendly material the Forb company boldly declares to be as safe as something edible and tasty.
Here, the main difficulty and challenge is the freedom of complex design solutions in favor of space where you feel yourself the very change that the world needs now.
Examination rooms are designed according to all the European requirements. You won’t cheat, no. And this, in the first place, teaches to respect yourself.
RELATED: FIND MORE IMPRESSIVE PROJECTS FROM THE UKRAINE
The colors are natural, but not blurred. The range is saturated — from orange and blue to salad green. For the eye to not get bored, and the space to be a forever unexplored land.
A good interior is primarily about functionality and comfort. Here is the maximum of light, freedom of movements and solutions.
A good interior is for geometry and ergonomics you do not think about. When you are at the academy, you are strolling through the pages of the book. Where each chapter has its own main character, but in the final act they all meet for the sake of a common cause.
A good interior gives you the energy of development.
Details
Designer lamps by Sergey Makhno are the light that comes from under the ground and sprinkles the warmth all beneath the ceilings. Made in limited quantities, from one person to another, at our own ceramic manufacture. Loved by the thousands of fans at the studio debut at the world’s largest design exhibition — iSaloni — in April 2019.
For students and teachers to concentrate on the learning process for 100% and not to be distracted by the problem of equipment, each audience has a direct connection with the support service. All you have to do is press the desired button on the touch panel that will instantly connect you with a technical service which will diagnose and resolve the problem remotely. Also, the system will digitize all the information presented at the interactive whiteboard and save it in a relevant format.
Energy saving is also taken care of. There are motion sensors to save electricity in transit zones, while unused audiences can be taken off into economical mode. And in the cinema, — the team’s long-standing dream — the sound system is just the same as at the Cannes Film Festival.
No, it’s not dragon eggs. This is our Flapjack tile, another owner of Red Dot Design Award-2017. It does not fly and does not breathe a flame, but it can fascinate your eyes. Favorite selfie-place of all the visitors.
Photography by Andrey Avdeenko
Find more projects by Sergey Makhno Architects: mahno.com.ua

