
Project: Maritime Museum
Designed by Cobe & Transform
Scope: 1 700 sqm
Client: Telemark Museum
Location: Porsgrunn, Norway
Website: www.cobe.dk & www.transform.dk
Design for Maritime Museum placed on an impeccable location in Porsgrunn is work of architects at Danish practices Cobe and Transform. For more images and architects description continue after the jump:
From the Architects:
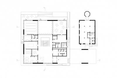
The city of Porsgrunn has a long maritime history of shipping, and the unique development of the region is clearly visible in the existing remarkable building structure of the area. The concept of the museum shows a high level of sensitivity towards the existing small buildings yet simultaneously stands out as a contemporary public building – housing a science center that takes its starting point in the narrative about Porsgrunn and Norway’s transformation from being a nation of seafaring to a modern society based on knowledge industry. Taking into account the surrounding building structure, the new building is composed of several smaller volumes with tilted and pitched roofs that are assembled into a larger building unit. A characteristic aluminum façade outlines the shape of the building composition and provides a vivid impression by reflecting the lights and colours of the surrounding landscape.
All public functions of the building are situated on the ground floor and have direct access to the outdoor areas including the new promenade towards the river. The central entrance area is the building’s main room from where all other rooms are distributed. This multifunctional space is defined by a central characteristic staircase that folds down from above and invites visitors upstairs to the large, enclosed exhibition area.
Here various room heights and a distinct ceiling line emphasize an airy and continuous space in the character of a white box. The exhibition space is composed as an open flexible space, gently subdivided by the roof and columns into 9 different spatial experiences. The 9 spatialities can be separated or combined, thereby providing a sound functional setting for small and large exhibitions.





















