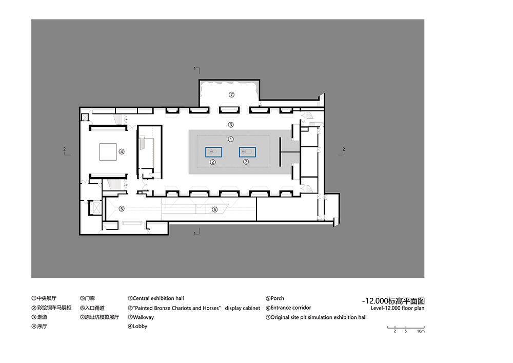
Image courtesy of © Atelier Diameter December 1, 2022, 3:13 pm Comments Off on Image courtesy of © Atelier Diameter See more Previous article Bronze Chariots Museum by Atelier Diameter