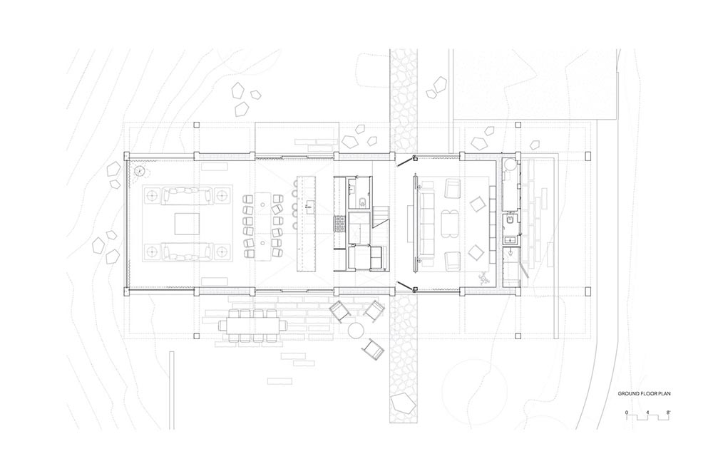
Image courtesy of © Mork-Ulnes Architects