
The new owner of a dilapidated auto repair garage, located in the heart of the San Francisco Mission District, came to the designers hoping to fit an infinite program, into a tiny shoebox of a space, on an extremely limited budget. The design challenge was to create a minimalist “open-ended” event space for this avid maker/inventor/tinkerer and his creative partners to experiment, while engaging the larger community of artists, educators and makers that define the SF DIY credo.
The design solution explored how to leverage a sophisticated approach to electrical, mechanical and structural infrastructure, to create a richly textured but essentially empty space that maximized volume. An intensive and immersive design process resulted in a deceptively simple, highly versatile plywood lined “tube” extending horizontally within an independent open steel space-frame. This tube freed the interior space of columns while permitting the street elevation and rear garden facade to be completely open.
The smooth glass street façade de-materializes the dense urban fabric, creating a shimmering void reflecting the sky by day and a glowing interior by night – seamlessly integrating vehicular and pedestrian “drive through” access from Minna Street to the rear yard. At each end of the tube, expansive glass presents the new interior as an ever evolving deep “stage” directly onto the street – a “mise-en-scene” of the workshops numerous fabrication projects, revolving exhibits, and energetic educational programs.
In order to create this polyvalent void, all electrical, mechanical, fire suppression and other systems had to be absorbed into the strict formal minimalism of the taunt interior. The empty Horizontal Tube is a “smart structure” integrating an electric radiant floor slab and panelized plywood walls and ceilings. Prefabricated walls conceal a myriad of high performance systems including acoustical absorption, vascularized supply lines, and muti-layered plug-ins.
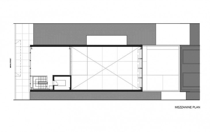
The volume is organized around a second smaller Vertical Tube that extends 28 ft. from floor to ceiling as a three level service core clad in reclaimed myrtle wood. This core consolidates all the functions of mechanical room, wet-lab, shop sink, caterer’s kitchen and bathrooms, all accessed by an articulated and segmented corkscrew stair that visually merges with its surface and passageways. This service “column” further allows the mezzanine classroom/office to be isolated from the workshop volume with glass curtains at two strategic locations.
An expansive skyward aperture punctuates the intersection of the two tubes – vertical and horizontal. This fully retractable skylight opens the space to the sky and to the native meadow green roof, allowing the entire space to be ventilated quickly. Walls and ceilings are laid out in a rational full sheet plywood pattern to minimize waste.
Light tracks are introduced into the joints in a randomized pattern to allow flexibility of future program possibilities and a myriad of light types, from orient-able spots, floods, pendants and line voltage theatrical spots, to plug-in projectors and accessories.
Six oversized dimmable high intensity industrial fluorescent fixtures float like balloons in the prismatic void – an unencumbered volume which integrates circulation, aperture, glazing and high performance systems to prioritize flexibility and future change all within a clearly defined space that breathes natural light in constant dialogue with the suns and the ever changing seasons.

Architects: INTERSTICE Architects
Location: 1173 Sutter St, San Francisco, CA 94109, USA
Area: 2000.0 ft2
Project Year: 2014
Photographs: Cesar Rubio
Structural Engineer: Strandberg Engineering
Contractor: JP Builders

