in , , ,

Sticks & Stones Home by Luigi Rosselli Architects

Hunters Hill is an attractive, historic peninsula that lies between the Parramatta and Lane Cove rivers on the north shore of Sydney Harbour. The suburb, a precursor to the Garden City movement, was subdivided in the 19th century with sandstone mansions and Victorian timber cottages sitting side by side, with large gardens and private parks containing centuries old trees.

It was natural to choose stone and timber to build a new house on the edge of one of these private parks. Sydney sandstone has a slightly yellow hue that darkens and becomes more attractive over time. The timeless materials provide a warm colour palette in an otherwise contemporary construction.

Behind the sandstone walls, huge, double glassed (Skyframe) windows with minimal framing are pocketed out of sight. Post tensioned concrete slabs have been cantilevered with minimal steel post support to cover the main garden terrace. Behind vertical timber shutters, curved glass windows span from floor to ceiling.

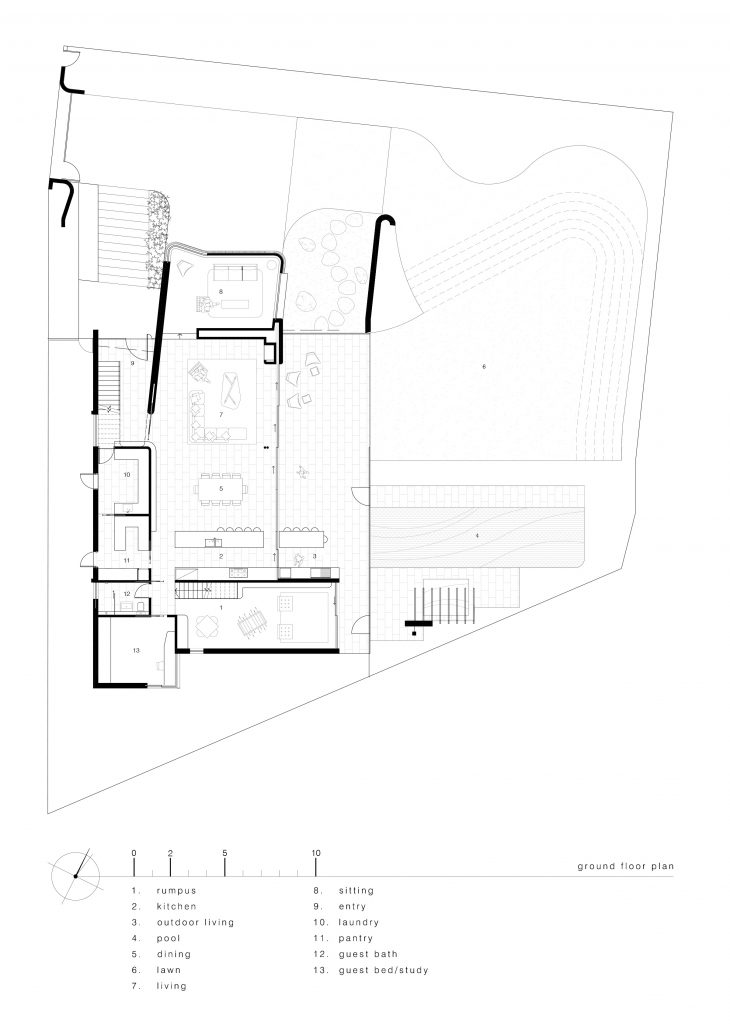
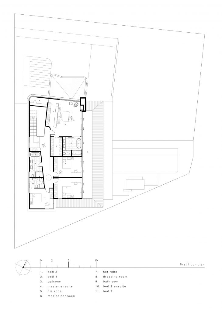
Designed for an uncluttered and relaxed family life the house layout is very simple and quite cartesian in plan except for one sinuous wall overhanging the driveway. Every room opens to a terrace or the garden through large glass doors that slide on ball bearings; one can step outside without noticing the thresholds. Additionally, one can move fluidly from the entry to the open plan living space while hardly noticing the floor to ceiling timber door that, when open, is entirely hidden in the wall but when closed completely separates the open plan area from the rest of the house.

All this modern machinery for easy living could end up being sterile and boring without a dark side: take the stairs to the basement and you will find a subterranean level housing a car collection, a home theatre, workshop, and wine cellar.

Project Architect, Jane McNeill managed to pull out of the barrel a beautiful cellar and perfectly detailed drawings that required no site visits and no questions from the Builder to execute.

Credits:
Location: Hunters Hill, NSW
Design Architect: Luigi Rosselli
Project Architect: Jane McNeill
Interior Designer: Romaine Alwill of Alwill Interiors Pty Ltd
Builder: KCJ Constructions Pty Ltd
Structural Consultant: BG&E Pty Ltd
Joiner: Sydney Joinery (Aust) Pty Ltd
Landscape Designer: Rolling Stone Landscapes
Landscape Installer: Hilli Landscapes
Photography: Justin Alexander, Edward Birch, Jane McNeill

Photography by Jane McNeill, Justin Alexander, Edward Birch

Blue Lake Retreat by Lake Flato Architects

The Dos and Donts of Installing a Wooden Floor