in ,

Villa Korsmo by Huusog Heim Arkitektur

Villa Korsmo Huusog Heim

Project: Villa Korsmo
Designed by Huusog Heim Arkitektur
Credits: Aslak Haanshuus, Børge Opheim
Client: Family Berg Korsmo
Project Area: 200 sqm 
Location: Nesodden, Norway
Website: huusogheim.no
Specially designed for a mountainous location Villa Korsmo in Norway is work of Huusog Heim Arkitektur and it takes the scope of lavish 200 square meters. Discover more of the design after the jump:

Villa Korsmo Huusog HeimVilla Korsmo Huusog HeimVilla Korsmo Huusog HeimVilla Korsmo Huusog HeimVilla Korsmo Huusog HeimVilla Korsmo Huusog HeimVilla Korsmo Huusog HeimVilla Korsmo Huusog HeimVilla Korsmo Huusog HeimVilla Korsmo Huusog Heim

From the Architects:

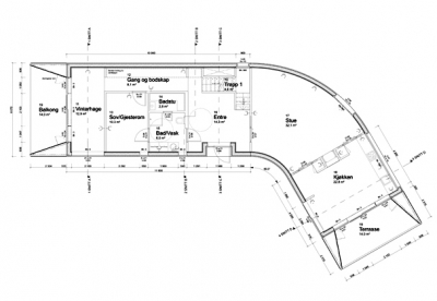
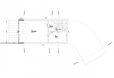
Villa Korsmo is a single family house designed for a couple at Nesodden just outside Oslo. It’s situated on a beautiful plot, characterized by natural vegetaion, pine trees and rugged terrain.

Acadia Parish Conference Center by Trahan Architects

Los Angeles Union Station Master Plan by UNStudio + EE&K