
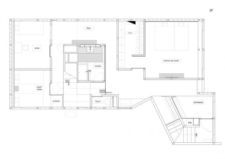
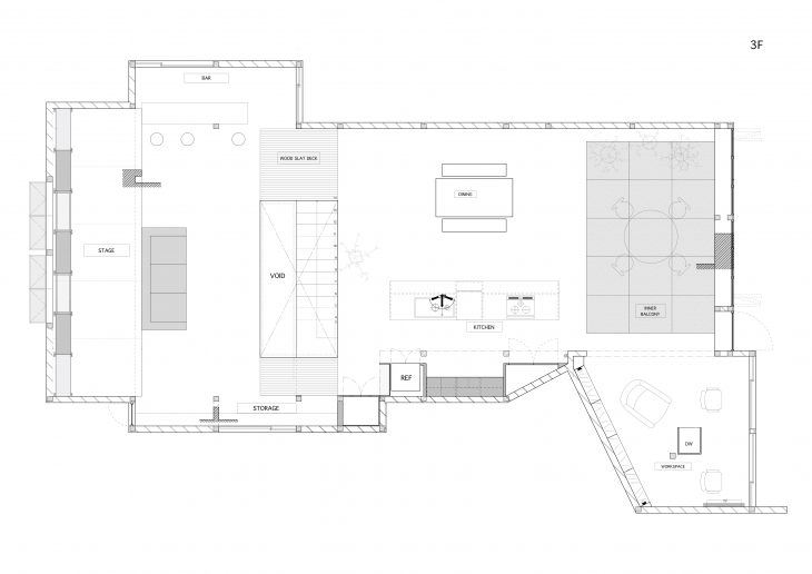
Take a tour of KINOSAKI Residence masterfully shaped by PUDDLE Inc. architecture practice. The contemporary household is located in the Japanese city of Toyooka Hyogo, was designed on two levels with an open floor plan in mind. The whole project takes scope of 276 square metres and is used as a family home.
MORE INSPIRING RESIDENTIAL PROJECTS ON ARCHISCENE
Get familiar with the space after the jump:
















Designer: PUDDLE
All Photos by Takumi Ota
For more by the architects visit www.puddle.co.jp

