in ,

Parksite by Doepel Strijkers and LEX Architects

Parksite Doepel LEX

This is the latest interior design project by Doepel Strijkers and LEX Architects. This time they worked on the transformation of a former ambulance garage into a house, named Parksite. For more continue after the jump:

Parksite Doepel LEX

From the Architects:

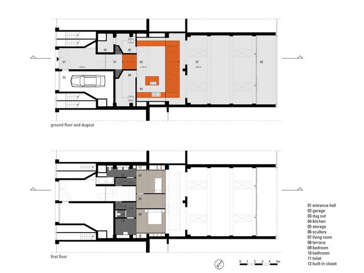
This former ambulance garage in the centre of Rotterdam borders on a secluded park. Replacing the rear wall with a large glass window creates a direct relationship to it.

Parksite Doepel LEXParksite Doepel LEXParksite Doepel LEX

The dugout in the middle of the building generates height for a second level. A polycarbonate lightbox with integrated LED lights houses the bedrooms and spans the space above the living-kitchen.

Parksite Doepel LEXParksite Doepel LEX

Custom-made cupboard, kitchen and stairs finished in bright orange polyurethane, link the dugout to the entrance hall on the street side and the living room on the park side.
Loose blocks on the staircase form informal chairs or function as tables.

Parksite Doepel LEXParksite Doepel LEXParksite Doepel LEX

The suspended light box functions as a focal point in the movement from the front of the house to the garden. As one moves under the box, views of the park emerge, creating a sequential build up of spaces culminating in the breathtaking view of this green oasis.

Parksite Doepel LEXParksite Doepel LEXParksite Doepel LEX

Project: Parksite
Designed by Doepel Strijkers, LEX Architects
Location: Rotterdam, the Netherlands
Website: www.doepelstrijkers.com &  www.lex-architecten.nl

London’s First LEED-CI Gold Office

Shaker Heights Residence by Dimit Architects