in ,

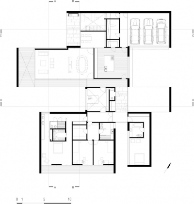
Aradas House by RVDM Architects

Aradas House RVDM

Project: Aradas House
Designed by RVDM Architects
Location: Aveiro, Portugal
Website: www.rvdm.pt
RVDM Architects design the marvelously shaped Aradas House in Portuguese town of Aveiro.

Aradas House RVDMAradas House RVDMAradas House RVDMAradas House RVDMAradas House RVDMAradas House RVDMAradas House RVDMAradas House RVDMAradas House RVDMAradas House RVDMAradas House RVDMAradas House RVDMAradas House RVDMAradas House RVDMAradas House RVDMAradas House RVDMAradas House RVDMAradas House RVDMAradas House RVDMAradas House RVDMAradas House RVDM

Capri Suite by ZETASTUDIO Architects

Congress Gateway Towers by Danny Mui & Benjamin Sahagun