
Studio Toggle designed this inspiring two family residence, a modern interpretation of the courtyard house, in Mishref, Kuwait. Take a look at the complete story after the jump.
From the architects:
Introduction
The house in Mishref is home to two brothers and their families with their varying lifestyles and needs for privacy and open spaces. An introverted composition of two separate living units grouped around an internal courtyard, the house is an interpretation of the traditional courtyard house.
Presenting a clean and serene façade to the street, the resulting massing manifests as a white monolithic volume poised elegantly on top of a stone cladded podium. Rhythmic arrangement of louvered windows across the façade softens the volume by lending it a sense of lightness.
Site and context
The site is located in Mishref, a suburb of Kuwait City comprised mostly of 2-3 story detached houses. The demographic is mostly Kuwaiti and the neighborhood values privacy and quietness. The harsh desert sun in one of the hottest cities in the world sees ambient temperatures rise up to 50 degrees Celsius regularly during the summer. Dust storms are also a regular phenomenon that dictates the planning and construction strategies in the area.
A quick survey of existing buildings in the surroundings reveals the following insights:
- Climate controlled internal spaces are preferred more than open outdoor or semi outdoor spaces.
- Maximizing the internal built spaces dictates that windows on the perimetric walls become the only source of natural daylight.
- Privacy concerns results in most of these perimetric windows being closed most of the time, resulting in dark and unhealthy interiors.
- Lack of internal social spaces.
RELATED: FIND MORE IMPRESSIVE HOUSES ON ARCHISCENE
The challenge was to address these concerns and define optimized design strategies without escalating the budget.
The courtyard and the fountain
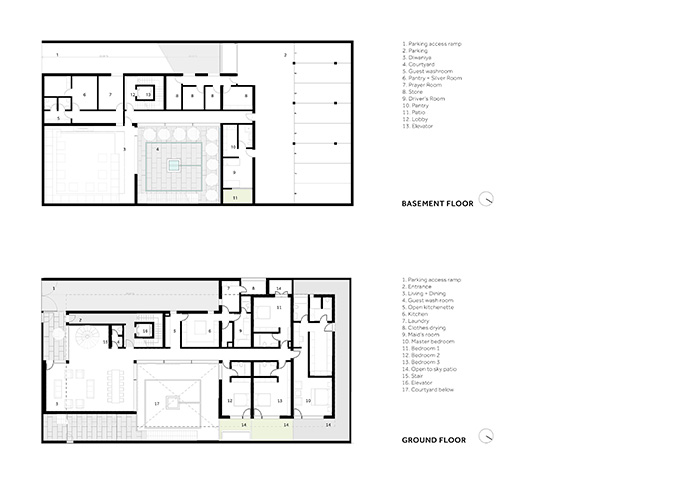
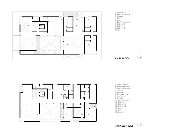
The house is organized around an internal courtyard cutting across all the floors. The U-shaped volume faces this courtyard in an Omani stone clad skin. The courtyard and the void results in an inward-looking typology that can benefit from maximum diffused daylight without compromising on privacy. The house, thus, opens up towards the interior featuring a private courtyard lined with citrus trees and a sculptural fountain reminiscent of the gardens from the Moorish Alcazars.
Circulation loop or social space?
The 4-story courtyard and void presented a question of human scale as well as connectivity between the living units facing each other. A large suspended stair is key to an architectural promenade that sweeps through all the floors, offering vantage points and ease of access.
The Palette
The interiors of the house features a simple palette of ethereal white and natural woods. The straight and minimal lines of the massing is offset with the sleek curves of spiral staircases. The furniture is carefully chosen and boldly contrasted against the serene ambience. The calming sound of the water and the diffused light filtered through the louvered windows make this house an oasis of tranquility in this busy Kuwaiti suburb.


















































Location: Al Mishref. Kuwait
Typology: Multi-family residence
Status: Built
Plot Area: 750 m2
Built – Up Area: 1400 m2
Project cost: 2.2 Million Euros
Number of floors: Basement + Ground + 2 floors
Team: HendAlmatrouk, Gijo Paul George, RuiGoncalves, Pedro Varela, Fabio Verissimos, Filipe Goncalves, Dionne Pereira, Abdul Rashed, Ashlon Frank
Structural Designer: Al Thurath consultants
Architectural lighting: Spaces and Concepts
Furniture and decorative lighting: MenaCasa and Natuzzi Kuwait
Photography: Joao Morgado – joaomorgado.com
Find more projects by Studio Toggle: studiotoggle.com

