
Project: Saint-Laurent’s Sports Complex
Designed by DATA Architects
Architects: Raphaël Masson
Project Manager: Julia Leroy, David Lelong, Edouard Guyard
Project Area: 2880 sqm
Client: City of Veauche
Location: Veauche (42), France
Website: dataarchitectes.com
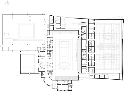
DATA Architects' design proposal for a double court sports complex and corresponding facilities in France is to takes scope of 2880 square meters. For more images and architects description continue after the jump:
From the Architects:
This is a simple rectangular shaped building with curved walls that are finely divided into two horizontal registers superimposed and slightly offset. This device reduces the silhouette of the extension, the traditional box gives way to a precious architectural object, with light and contrast.
The lower register, made of structural concrete, houses the new gymnasium and its various functional premises and all premises involved in the existing gymnasium. A vertical cladding panels of anodized aluminum on the exterior insulation dressed Complex and harmonizes all the facades of the register.
The upper, slightly offset, sits on the lower layer of concrete and forms an attic of lightweight steel structure. It is the level of the ambulatory spectators to the stands of the two gyms. It is also an expression of the volume of the gymnasium, a metal complex double-skin pierced by large openings framed the landscape which also distribute natural light on the evolution of the sports area. The perimeter is dressed in clothing of a type identical to the low register, the surface is covered with a steel deck roof with insulation and sealing tamper.
Inside, large windows open the gym on the park and the general landscape. An internal street to provide athletes access is reserved for locker rooms and storage areas positioned on either side. On these “bands,” landed the stands of the two gyms, directly accessible to the public from the entrance by a staircase which joins the well-sized ambulatory above.
Source ArchDaily. *






