
Project: Mountain Hill Cabin
Designed by Fantastic Norway
Location: Al, Norway
Website: www.hakonoghaffner.no
Mountain Hill Cabin designed by Fantastic Norway practice answers to all the special requirements of its location, construction is set for Summer 2012. View more of the project after the jump:
About the Project:
The fairly direct design brief outlined by the client for this unique abode was to conceptualise a way of incorporating an interactive ski ramp into the building's structure. The eventual solution to this request was to position the gabled roof at the accommodating angle of 23 degrees, whilst extending it along this trajectory, until it eventually meets ground. These elongated eaves will provide the necessary smooth and continuous track for skiers to traverse; combined with several aligned extrusions on the roof the overall basic design resembles an unusual amalgamation of right-angle triangles; purportedly made in the impression of an abstract mountain.
The limited height, whilst arguably advantageous, was in part due to restrictions imposed by local planning stipulations. Extending just 6m upwards, into the Norwegian air, the available internal space has resulting in a need for a confined, minimal approach to fitting; though is well-suited for minimising the strains of wind and snow. Integrated into the landscape, this streamlined structure allows these two elements to gently slip over it, rather than beating down upon it.
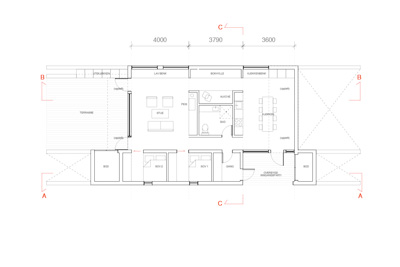
Packed into this limited space is an impressive total of four rooms; on the 2m-tall base level will be two bedrooms and a living room, with an additional third bedroom to be squeezed into the even more constricted upper floor. The walls themselves will be specially insulated, to maintain a warm place rest whilst the outside temperature plummets. The building materials will be brought to the site via snow scooter, out of respect for the natural beauty of the region; this will prevent larger vehicles from causing any debilitating effects, to the pristine surroundings. Construction for Mountain Hill is due to begin in the summer of 2012, with no confirmed completion date yet disclosed.
Source Worldarchitecturenews. *










One Comment
One Ping
Pingback:Mountain Hill Cabin by Fantastic Norway