
UAD designed this comprehensive office building commissioned by Kaihua County Urban Construction and Development Co., Ltd. in Kaihua County, Zhangzhou City, Zhejiang Province. This project has a superior geographical position. The south side is a multi-storey terrace house. The north side is a low-lying mountain with abundant vegetation. The valley on the east side is quiet and far-reaching. The west side is just a few steps away from the bank of Qinjiang River. Take a look at the complete story after the jump.




























From the architects: The project was commissioned by Kaihua County Urban Construction and Development Co., Ltd. to design a comprehensive office building with three functional requirements: the Urban Archives and the Civil Defense Command Center and the Housing and Construction Bureau at the entrance of the scenic spot. The project has a superior geographical position. The south side is a multi-storey terrace house. The north side is a low-lying mountain with abundant vegetation. The valley on the east side is quiet and far-reaching. The west side is just a few steps away from the bank of Qinjiang River. The mountain can be seen from afar. Like description of Tao Yuanming’s “Peach Blossom Spring”, a large-scale multi-functional building with open access functions and private concealed works is constructed between the general green mountains and green waters that fully respected the original buildings which is the challenge of this project.
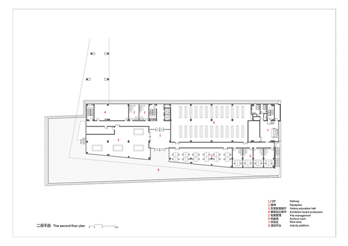
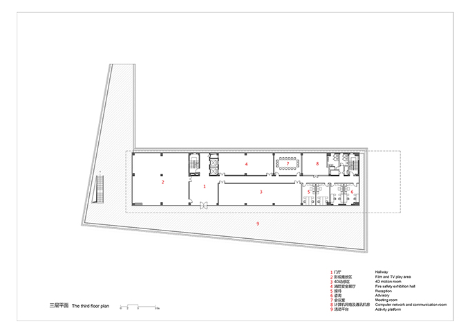
The design firstly places the densely populated urban archives in the ground floor and semi-basement; then places the canteen on the second floor near the west side road, and places the civil air defense command center on the second floor near the hinterland of the valley, using the folding plate to lower the two layers. The amount is hidden in the mountain; finally, the office of the Bureau of Housing and Construction is placed on the folding board, and the building has a visual effect on the mountain by means of cantilevering and other methods, so the landscape resources are utilized to the greatest extent. The main office part of the building are placed in a three-story rectangular box floating on a folding platform. The pure and simple shape conforms to the trend of the south side folding platform and is arranged parallel to the north side mountain contour. Meanwhile, the box is overhanging about 12 meters in the east, so that the box and the lower folding platform form a combination of shapes that balance in the displacement.
There is a small road connecting the north side of the mountain as a passage for people to go up and down the mountain. To fully respect the status and surrounding landscape resources, the solutions for different elevation platforms is proposed. Urban archives with relatively dense traffic are distributed on the bottom one floors. Platforms with different elevations are connected by ramps and stairs, just like the continuation of the north side mountain contours, so that the lower buildings and the mountains are naturally integrated. This not only restores the original access to the mountain, but also the multi-elevation platform has become an ideal place for local citizens and users to stop and watch the surrounding scenery.
RELATED: FIND MORE IMPRESSIVE PROJECTS FROM CHINA
The framed window hole at the east and the west is a typical and very effective means of enframing scenery. The wall of upper three-layer box of gray and white is of imitation stone colored with real stone paint embedded with a very fine dark gray window frame. The glass window with excellent transparency is like a frame so that the most beautiful part of the valley entrance is embedded in the building as a never-fading picture. After that, the winter is coming to spring, the clouds are rolling, the trees are fading away and flourishing. People are in a stable and comfortable building, enjoying the natural beauty of the outside without a sense of distance, forming a spatial continuity inside and outside the building.
The building adopts black and white gray to reflect the artistic color of the Kaihua landscape city and the Chinese landscape painting. When the clouds in the mountains linger, the pedestal of the building disappears in the mountains, and the upper gray-white box floats on the mountains. Viewing distant mountains and rivers on different platforms creates a feeling of integration of the surrounding mountains and the sky. The extremely simple shape of the building lines combine the virtual and the real, the transformation of light and shadow. The design has successfully solved many functional spaces including urban archives, civil defense command center, office, etc., and harmoniously echoes the surrounding mountains, reflecting the architectural design ideas of harmonious coexsistence between man and nature.
The project has been in use for more than two years now. Every time you return to the base site, you can feel that the building and the environment have gradually merged into each platform and the surrounding mountain roads. People are more and more fond of working here which may be the most meaningful value of our original design concept.
Project Name: Kaihua County 1101 Project and Urban Archives
Design unit: The Architectural Design & Research Institute of Zhejiang University Co., Ltd – www.zuadr.com
Designer: Fan Xuzhuang, Zhu Kai, Shi Minghua
Structural design: Shen Jing, Jin Zhenfen, Ding Lei
Electromechanical design: Chen Zhoujie, Yang Wenzheng, Shao Chunting, Jiang Bing
Curtain wall design: Bai Qi’an
Project Owner: Kaihua County Civil Air Defense Office
Project Location: Fenghuang Middle Road, Kaihua County, Zhangzhou City, Zhejiang Province
Project type: Archives, office
Land area: 7118 square meters
Project area: 12,206 square meters
Main materials: granite, colorful real stone paint, glass, aluminum
Photographer: Zhao Qiang, Zhou Yifan, Fan Mingming

