Project: Kutaisi Airport
Designed by UNstudio
Project Architects: Ben Van Berkel, Gerard Loozekoot with Frans Van Vuure & Filippo Lodi, Tina Kortmann, Roman Kristesiashvili, Gustav Fagerström, Wendy Van der Knijff, Machiel Wafelbakker, Deepak Jawahar
Client Terminal: United Airports of Georgia llc
Client Air Traffic Control Tower & Offices: Sakaeronavigatsia ltd.
Building Surface: Terminal 4 000 m2, Control Tower & Offices 1 750 m2
Height Air Traffic Control Tower: 55 m
Building Site: 11 000 m2
Location: Kutaisi, Georgia
Website: www.unstudio.com
UNstudio shares their project design for the Kutaisi Airport in Georgia which will serve domestic and international flights, new airport is crucial for the development of the city as the new Georgian capital. Construction of the new airport is set to begin in December 2011 with completion date in September 2012, when the airport is expected to be fully operational.
From the Architects:
UNStudio's design for the new Transfer Terminal and Air Traffic Control Tower for Kutaisi Airport was officially presented by the President of Georgia, Mikheil Saakashvili.
Georgian President Mikhail Saakashvili, who personally demolished one of the walls of the old airport announced, "We will build an international airport here, which will take aircraft from Munich, Rome, Baku and other cities as of next year."
The Netherlands‘ Ambassador Pieter Langenberg said that the next year to be finished airport in Kutaisi would be a landmark for Kutaisi. Dutch architects firm UNStudio is well known from projects all over the world (Mercedes-Benz Museum , Galleria Centercity, Raffles City) and Georgia, as a country in transformation, rapidly modernising, would fit well in their list of prestigious projects. I’m hoping that the airport will be a landmark for Dutch investment too, the Netherlands being one of the biggest investors in the country “.

UNStudio has designed the new Kutaisi Airport which will serve domestic and international flights for use by international diplomats, national politicians and for tourism.
Georgia, a young state in the Caucasus which has undergone considerable development in recent years, is moving its Parliament from the capital Tbilisi to the city of Kutaisi. A new parliament building is currently under construction in Kutaisi and in 2012 the first parliamentary meeting will take place.
In recent years growing numbers of tourists have been discovering Georgia, a country with an ancient and engaging history. As a result there is increasing demand from airlines to fly to Georgia. By virtue of its geographical advantages and the nearby location of two of Georgia’s most important Unesco monuments, Kutaisi was selected as the destination for a new airport. The new Kutaisi airport will in addition provide an economic impulse to Georgia’s second city and its new seat of Parliament.

Ben van Berkel: "The design for the new terminal in Kutaisi focuses first and foremost on the experience of the traveller by creating an inviting, safe, transparent and user-friendly airport. The desire to provide for and communicate equally with both international visitors and the local community is paramount. "
UNStudio’s design for the new Kutaisi Airport incorporates both Georgia’s historic landscape and its architecture. In Georgia public buildings and private houses employ their entrance lobbies as showcases for their individual identities. In the design for the new airport UNStudio embraces this architectural concept in order to manifest Georgia’s young and dynamic democracy, along with its rapid development as a main crossing point in the region. Georgia is located on a crossroads of rich cultures, with a history of travellers passing through the Caucasus or arriving from the Black Sea.

Ben van Berkel: "It was particularly exciting for me to be able to design an airport which is not only linked to the new seat of parliament in Kutaisi, but which also creates an entrance condition which functions as a port for the international community. The airport presents a symbolic infrastructural gateway to Georgia and, from there, to the rest of the world."
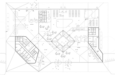
The 4,000 m2 terminal building will house a central arrivals hall, a check-in area with lounge, cafe and car rental facilities, three gates for departure with retail, cafes, a CIP lounge area and exterior garden, an arrival area with customs and offices for the border police and an administration area with staff rooms and press conference facilities.

The architecture of the terminal refers to a pavilion; a gateway, in which a clear structural layout creates an all encompassing and protective volume. The volume is structured around a central exterior space which is used for departing passengers. The transparent space around this central point is designed to ensure that flows of passengers are smooth and that departure and arrival flows do not coincide. These axes incorporate views from the plaza to the apron and to the Caucasus on the horizon. The design organises the logistical processes, provides optimal security and ensures that the traveler has sufficient space to circulate comfortably. Serving as a lobby to Georgia, the terminal could in addition operate as an art gallery, displaying works by Georgian artists and thereby presenting a further identifier of contemporary Georgian culture.
The 55m high, 300 m2 Air Traffic Control Tower is designed to compliment the design of the terminal. The traffic control cabin on the top level forms the focal point of the tower, with a spacious and comfortable interior ensuring a workspace of optimal concentration. 1,500 m2 of supporting office spaces are housed in a nearby building. The exterior of the tower is clad with a transparent skin with the potential to change color whenever there is a fluctuation in traffic. The Air Traffic Control Tower will function as a light beacon to the sky for the international airport, but also from the road to and from Georgia’s new parliamentary city Kutaisi.

Ben van Berkel: "The design for the new airport embraces the traveller by embodying the circumstance of the site. Moments of both leaving and returning are celebrated by the large span, open spaces and high ceiling of the terminal structure – reflecting the ways in which such gestures were employed in the great railway stations of the past."


The design for the new airport aims to incorporate local and international sustainable elements. An onsite underground source of natural water provides the basis for the reduction of energy consumption through concrete core activation. The floors of both the Terminal and the ATCT will utilise this water for maintaining a regulated temperature in the two volumes. In the Terminal building cantilevered roofs provide sun shading on south and southwest zones. A hybrid low pressure ventilation system will be integrated into the terminal's main structure and there will be a grey water collection system in the floor underneath the terminal building. To further lower energy consumption there is the possibility to implement large areas of PV-cells on the roof surface. Kustaisi airport will be Georgia’s first airport to incorporate a strict segregation of waste. The aim is to establish a recycling system which could be further implemented into new and existing projects in Georgia.
Construction on the new Kutaisi Airport will begin in December 2011. The airport is scheduled to be operational in September 2012.
One Comment
One Ping
Pingback:UNstudio Design Kutaisi Airport