
Project: Roadside Reststop Akkarvikodden
Designed by Manthey Kula Architects
Location: Lofoten, Norway
Website: www.mantheykula.no
Manthey Kula Architects showcase their sculptural aesthetic on believe or not a rest-stop design at the remote Lofoten in Norway. View more of their project after the jump:
From the Architects:
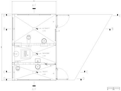
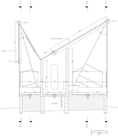
The rest room is built on an existing rest area where the old toilet facility had been lifted off it's footing by strong winds, hence the new structure needed to be solid and durable. The building is made of 10-12 mm sheets of structural corteen steel welded together on site. Two large glass openings provide view to the sky and the reflected horizon. Surfaces that get in contact with the visitors are made of stainless steel or covered in clear glass to prevent rust staining.
Source Dezeen. *







