Project: Busan Opera House
Designed by Henning Larsen Architects and Tomoon Architects
Project Team: Henning Larsen Architects, Tomoon Architects, Arup, Theatre Plan and Speirs + Major
GFA: 47100
Number of Seats: 1781
Client: Busan Metropolitan City
Location: Busan, South Korea
Website: www.henninglarsen.com
Henning Larsen Architects design for the much talked about Busan Opera House, took the 3rd place in the massive international competition. The proposal finds a splendid way to connect the citizens of this South Korean city to it's waterfront. The form of the building comes from the inspiration found in the location itself.
For more images as well as the architects description continue after the jump:
From the Architects:
Henning Larsen Architects won the third prize in the international competition for designing the new opera in Busan, South Korea. The proposal for the Busan Opera House connects the citizens of Busan to the waterfront.
The architecture takes it’s inspiration from the particular location in Busan. The clear shape of the grand roof creates a magnificent icon in the vertical context of high-rises and mountains. At the same time it creates a subtle unity with the ocean and the horizon.
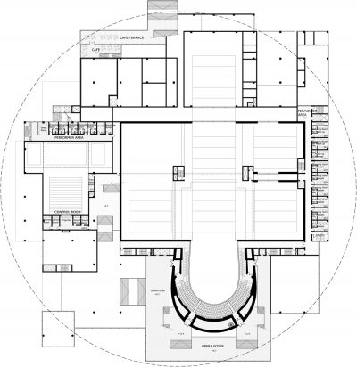
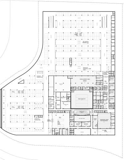
The circle of the roof becomes a strong symbol encompassing a dynamic range of unique activities. The different functions of the cultural centre are conceived as houses and city blocks under the grand roof. The architecture envisions an “art or opera village” of fragile wooden chests that are sheltered from rain and sun.
The auditorium is the symbolic heart of the house conceived as a giant pearl set between the wooden boxes. The inside of the auditorium follows the classic horseshoe form creating a festive social space where everybody sees everybody and still has excellent acoustics and views to the stage.
The city has a beautiful location between high mountains and long fjords. The hilly terrain provides a rich, natural view of the cityscape. For the surrounding city, the new opera is The Stage of Busan – letting everyone become part of and follow the unique life at this special place.
The roof functions as an amphitheatre and constitutes a grand new place capable of setting in scene the unique location with the sea, mountains and city of Busan. At the same time, the concave shape creates a strong unity of the roof amphitheatre. The roof amphitheatre creates a huge space that is shielded from the wind and separated from the noise and bustle of the city.
In the evening, the collected heat from the sun creates a warm and protected plaza – like the amphitheatrically shaped city hall square in Sienna, Italy. The view of the contours of the mountains, the horizon of the Korea Strait, and the sky, at night with the moon and stars forms part of the experience.
The roof changes over time depending on use, weather and seasons, day and night. Snow and rain, colors and scent of flowers can be complemented with artificial light shows in the night.

