
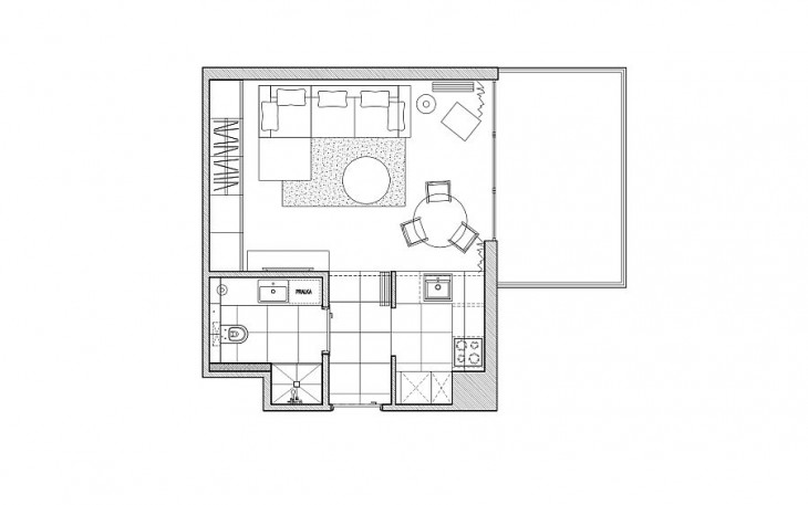
A Small apartment designed by by Raca Architekci in Gdansk, by adopting design solutions that work around the lack of space to make the most of the apartments 36 square meter. The architects used a geometric pattern and a wall of felt in the living room to bring pattern and texture to a polished contemporary interior.
White is dominant color of the apartment to visually widen the space, and with the addition of gray create visual contrast while keeping fragmentation of space to a bare minimum. The open living area also contains a small dining space with a round dining table that features a pedestal base, lovely wooden chairs and a pendant in gray above. One can see a clear influence of Scandinavian style inside the apartment, with geometric patterns, accessories and decorative pieces driving the point home.


