
Project: Ubon Bistro
Designed by Rashed Alfoudari
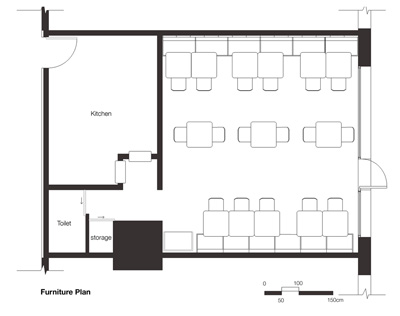
Project Area: 60 sqm
Location: Salhiya, Kuwait City, Kuwait
Photography: ArchOfKuwait (OAK)
Website: www.archofkuwait.com
Clean lines shape the contemporary solution of Ubon Bistro's interior as well as exterior designed by Rashed Alfoudari.
From the Architect:
Ubon is a Thai bistro located in the core of Kuwait city. It overlooks Fahad Al salim street, a street well respected for it’s commerce back in the days. The space program of this bistro requires an efficient design for all of the kitchen, storage, and toilet areas; allowing for a spacious dining area. For this to be executed, the interior works where to be integrated with the existing structural elements in a harmonious manner.
The Burnt wood panels, infused with the golden copper elements surround the dining area portraying the asian influence of this bistro. Pendant lights were added to soothe the dining area with their organic shape. Adding to their relevance is the inner golden color they diffuse, a color that had great impact on thai cultural ornamentation.
Giving a visual continuity to the dining area where the wooden grains imprinted on the restroom’s concrete walls. The contrast in color and material here is then unified by texture. To continue the vertical pattern, the restroom was fitted with a suspended ceiling faucet along with an off-white standalone basin.
















One Comment
One Ping
Pingback:Ubon by Rashed Alfoudari