
Seattle-based architecture firm Rerucha Studio designed this modern residence situated in the Seattle neighborhood of Magnolia. The idea was to design a modern light filled home with a classic yet modern feel on a limited budget. Take a look at the complete story after the jump.
From the architects: Situated in the Seattle neighborhood of Magnolia, the goal of this 3,318-square-foot house was to create a modern spacious home with lots of light, a classic yet modern feel all while managing a limited budget. Economy of structure and materials was exercised. “The project takes a spec-built budget and creates a home that reflects the client’s spirit and aspirations,” notes architect Jill Rerucha. Stepping inside the home, the large grid of windows flood the interior with natural light and provide views out onto the street. The large grid windows transform the house inside and out and provide high impact street appeal.
The house is laid out on a grid. Structure, materials, windows, and casework, all align to create a harmonious design. “I moved walls, prefabricated cabinets, 4×8 exterior siding, and windows within inches to align,” adds Rerucha. The large marble slab at the kitchen wall is illuminated and is a dramatic backdrop visible from inside and out. The living room, located at the front of the house, is focused on a built-in fireplace, while behind the couch is the dining area. Further into the house is the kitchen.
RELATED: FIND MORE IMPRESSIVE PROJECTS FROM THE UNITED STATES
A large grey marble slab at the end of the kitchen becomes a backdrop that’s visible from inside and out. A large kitchen island with a sink and plenty of storage, provides ample food prep space. A set of stairs behind the kitchen lead up to the sleeping areas of the home. Dark wood stair treads serve to accent the tranquil interiors. In the master bedroom, the large grid windows and fireplace make another appearance, while the rest of the room has been kept neutral except for a bright Womb chair and ottoman.
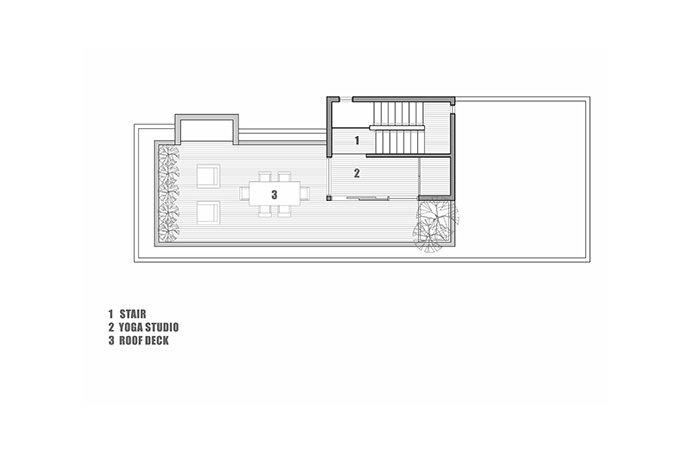
At the top of the house, there’s a private yoga studio that opens up onto a rooftop deck with views of the neighborhood. “With a modest budget you need to be selective. It’s like an outfit, Prada shoes and a gap t-shirt are just fine…you don’t need all Prada,” notes Rerucha.


















Architecture and Interiors: Rerucha Studio – www.reruchastudio.com
Contractor: Mint Build LLC
Photography by Lara Swimmer
					
						