in ,

House in Las Arenas by Javier Artadi

House Javier Artadi

Project: House in Las Arenas
Designed by Javier Artadi
Location: Las Arenas, Lima, Peru
Website: www.javierartadi.com
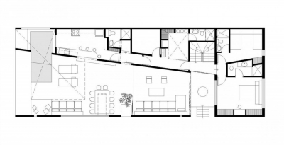
Studio of architect Javier Ardi shapes the contemporary design of House In Las Arenas, along with additional images see the floor plans after the jump:

House Javier ArtadiHouse Javier ArtadiHouse Javier ArtadiHouse Javier ArtadiHouse Javier ArtadiHouse Javier ArtadiHouse Javier ArtadiHouse Javier ArtadiHouse Javier ArtadiHouse Javier ArtadiHouse Javier ArtadiHouse Javier ArtadiHouse Javier Artadi

Source ArchDaily. *

Remmelt Interior Design Studio in Amsterdam by Remmelt van der Wal

Jingzhou Sports Center by DUO + China National Sports Group