
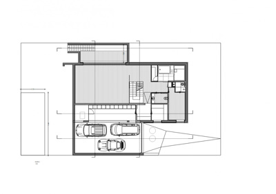
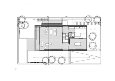
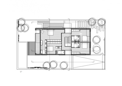
Project: Open Block House
Designed by ARQX arquitectos
Scope: 555 sqm
Location: Porto, Portugal
Website: www.arqx.net
Open Block House, a beautifully designed family home in Portuguese city of Porto is work of local ARQX arquitectos. For more images continue after the jump:
Source ArchDaily. *














