
Octane architect & design designed this stunning modern serviced apartment located in Bangkok, Thailand, in 2018. Take a look at the complete story after the jump.




















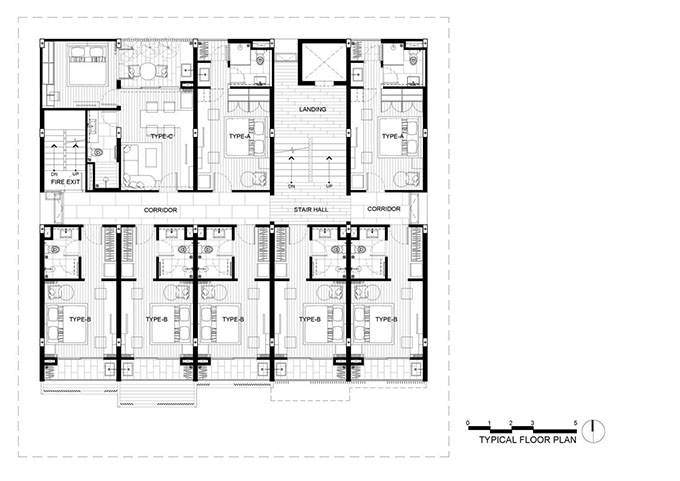
From the architects: HACHI, the modern serviced apartment for monthly rental, located in business areas of Ladprao, Bangkok, and surrounded by very crowded urban housings, office buildings and conventional apartments. This serviced apartment composes of luxury rental 34-unit rooms with an area of 26-44 sqm. per room, a serviced office and multipurpose room. Hence, the building will scale approximately 5-storey with a total functional area of 1,100 sqm.
In the design of conventional apartment, a solid box is created as a model, of which the exterior consists of several balconies that are used for drying clothes and lying CDU or other insignificant purposes. Gables are designed above each of balcony to make residents feel like the apartment is their home, hide untidy balconies, and be a sunshade during daylight.
The building composes of several modular gable stories, each of them is orderly differentiated, including different depth, lath orientation and height. With a perfect combination of those modules that makes them like harmony rhythm as if the building is a vertical village.
RELATED: FIND MORE IMPRESSIVE PROJECTS FROM THAILAND
The interior space is inspired by an analogic idea of ancient eastern people, who organized spaces by dividing each of activity areas in a sequence. Similarly, each of internal phases has an emotional design divided by gable arches that are related with exterior façade to switching people’s emotion by bright and dark areas that begin from the entrance through stair hall and corridor.
The corridor wall and stair hall are built by black stones, with tiny spot lights that emit toward wood floor to guide and draw people’s attention to the path while walking.
The corridor and rental room are designed to make residents feel highest comfortable, lively and a peaceful décor by a result of a perfect blend between white marbles and wood texture that give residents such a warm ambience as if it is their own home.
Photography by Rungkit Charoenwat
Find more projects by Octane architect & design

