
Project: Townhouse Prototype
Designed by AllesWirdGut Architectur ZT GmbH
Client: Linzertor Liegenschaftsverwaltungs GmbH
GFA: 5 139sqm
Location: St. Pölten, Austria
Website: www.alleswirdgut.cc
AllesWirdGut Architectur ZT GmbH practice design a contemporary taken Townhouse Prototype project in Austrian town of St. Pölten, the new building will house both office and shopping space.
For more images and architects description continue after the jump:
From the Architects:
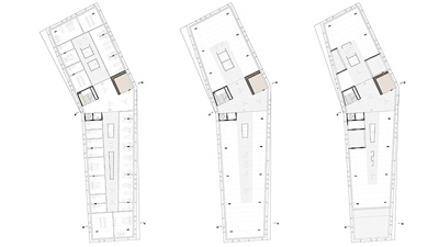
The new office and shopping building fits in with the typology of detached townhouses in the neighborhood. Slight twists of the basic volume actively impact the surrounding urban fabric:
A bent in the longitudinal facade line relates the building to its surroundings, consolidating the adjacent streets and creating a usable plaza before the building.
The staggering of the floors on the narrow sides takes account of different sizes and lighting needs of the neighboring buildings, improves the visual connection between enclosing streets and gives the building its unique shape.
Inside, the building is informed by the lobby with its multi-storey air spaces as the communicative center.
Due to their structural openness, the adjoining usable floor spaces are neutral in respect to usage and hence may be individually designed.
The facade structure qualifies the building a contemporary descendant of the neighboring Baroque houses.
As “urban shelves”, it turns the variety of its interior life to the outside to achieve the detailed facade articulation that is needed to contribute to a lively streetscape.











One Comment
One Ping
Pingback:AllesWirdGut Architectur ZT GmbH' Townhouse Prototype