
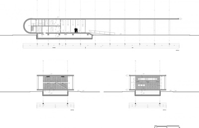
Project: Bus Station in Rio Maior
Designed by Domitianus Arquitectura
Lead Architect: Paulo Tormenta Pinto
Project Team: Andreia Morais, Nuno Monteiro, Luís Miranda, Rodolfo Gomes;
Consultants: SAMPRIZ – Mário Leitão; Francisco Alvim; EPETE – Rui Silva e Santos, Miguel Leitão and Isabel Martins;
Client: Câmara Municipal de Rio Maior
Location: Rio Maior, Portugal
Domitianus Arquitectura creates an outstanding terminal bus station for Portuguese town Rio Maior, the building gives the important first and last impression of the city. For more continue after the jump:
Source ArchDaily. *













