
Project: Green Solution House
Designed by 3XN
Project Team: Kim Herforth Nielsen, Kasper Guldager Jørgensen, Peter Feltendal, Laura Diestel, Majbritt Lerche Madsen, Morten Norman Lund, Tore Banke and Simon McKenzie
Partner Architects: William McDonough & Partners
Engineers: Esbensen Consulting Engineers
Client: Hotel Ryttergården
Size: 4 500 m2
Location: Strandvejen, Rønne, Denmark
Website: www.3xn.dk
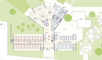
Designed with the state of the art rules of environmental sustainability the Green Solution House in Strandvejen is work of noted Danish practice 3XN.
From the Architects:
The Green Solution House conference center and hotel in the Danish island of Bornholm is designed to be a platform for the highest level of sustainable development.
In accordance with the principles of Cradle 2 Cradle all materials used in the fan shaped building are either fully recyclable or biodegradable. Hence, it is a building design that takes on the ambition to eliminate the concept of waste.
Eliminating waste means that everything must be part of a circulation. Thus, the building is designed for disassembly and constructed of defined recyclable materials. Solar energy is producing the energy consumed in the building, rain water is collected and water used is biologically cleaned and reused. Integrated green houses produce organic fruits and vegetables for the hotel restaurant. Further, the daily material flows from running the center is either recycled or composted.
The center is a project under continuous development. Hence, the building will always introduce the newest sustainable solutions on biodiversity, materials, energy, water, and waste.
Source ArchDaily. *













One Comment
One Ping
Pingback:Green Solution House by 3XN