in , ,

Berani Jewellery by PrototypeDesignLab

Berani Jewellery PrototypeDesignLab

Berani Jewellery PrototypeDesignLab

Project: Berani Jewellery
Designed by PrototypeDesignLab
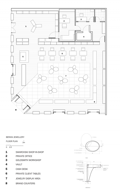
Total Floor Area: 1 000 sqf
Location: Toronto, Canada
Website: www.pdlab.ca
Canadian practice Prototype Design Lab shares with us their sophisticated project for Berani Jewellery store in Toronto. 

Berani Jewellery PrototypeDesignLabBerani Jewellery PrototypeDesignLabBerani Jewellery PrototypeDesignLabBerani Jewellery PrototypeDesignLabBerani Jewellery PrototypeDesignLabBerani Jewellery PrototypeDesignLabBerani Jewellery PrototypeDesignLab

From the Architects:

Berani Jewellery is a high-end jewelry store in Toronto, conceived of a harmonious balance between sophisticated function and cozy experience. The goals of this project were both to create a new space for Berani Jewellery to flourish as an elite jewelry store and to provide the total VIP experience to each client, through incorporating elements of security, spaces for privacy, and a variety of subtly definedspaces.

Luxurious materials, custom upholstery and contemporary detailing provide the framework for this space. Almost every single element is custom designed and made for this project. Shoppers are drawn into the store on a pathway of oversized, marble slabs, under a floating ceiling with glowing edges. In the centre of the space is a series of black Nymphaea, sprouting from the ground, on which jewelry sparkles like dew drops on lily pads. To accentuate the compressed area, individual crystals are suspended above each display.

Around the perimeter of the store, the intricate grain of Brazilian Santos Rosewood runs horizontally on floor-toceiling cabinets, creating a backdrop for the myriad of textures and layers. Customized canopy chairs provide clients with a sense of privacy for one-on-one meetings with sales associates. The result is a functional and refined whimsicality.

Europa City by BIG

Mister T by Antoine Lesur