
Project: "Wright Conversion"
Designed by Elmo Swart Architects
Location: Durban, South Africa
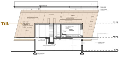
Another shining example of a way to morph architecture and nature comes from Wright Conversion, a three bedroom cottage designed by Elmo Swart Architects. Cottage design includes a special continuous surface wrapping around the whole cottage forming roof walls and floor.
Source Designboom. *














