
Project: "Fasten Your City Belt"
Designed by Haiko Cornelissen Architecten
Team: Haiko Cornelissen with Runar Halldorsson
Area: 650 000 sqf
Location: Amsterdam, The Netherlands
Website: www.haikocornelissen.com
Fasten Your City Belt project in Amsterdam comes from the offices of Haiko Cornelissen Architects who took on the urban redevelopment of more than 600,000 square feet. See more of the project after the jump:
From the Architects:
Fasten Your City Belt is an urban strategy that transforms lifeless office districts into lively areas through a combination of strategic interventions and incentives.
As an example of the transforming strategy, we chose the Amstel III office district in Amsterdam for the Europan 11 competition – one of the most prestigious and renowned competitions for young European architects.
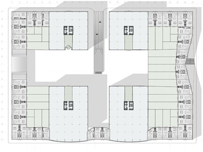
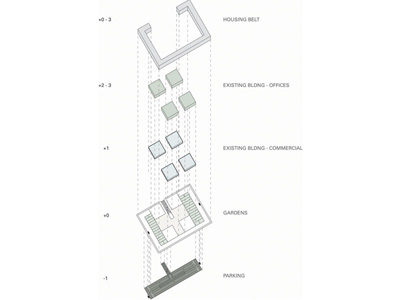
Based on research, the most important factor for creating lively cities is the density of people, buildings and program. Because Amsterdam has a steady demand of residences for the niche market, apartment buildings with accompanying program (supermarkets, daycare, restaurant, etc) have been introduced.
Secondly the existing spatial organization needs to be transformed to accommodate the increased density. Thanks to the oversized infrastructure, the perimeter of each plot can be used to introduce new program in belts around the plot. These belts are transformed in response to local conditions: pushed up to create an entrance, pushed down or in to create more space and light for the existing buildings, or twisted to create space for the parking entrance below. Parking spaces are moved underground to make room for semi-private gardens, and office lobbies are moved up to solve the office vacancy by allowing new program to move in on the ground level.
Finally it is essential that plot owners are given incentives to collaborate in a private-public effort to transform the area. Reducing the oversized infrastructure allows the local government to increase the plot size of the owner in exchange for redeveloping the plot. The resulting increase of building area and spatial quality increases the value of the plot and therefore the incentives even further.
With Amsterdam as an example, Fasten Your City Belt serves as a new paradigm for any city that wants to transform mono-functional areas into lively neighborhoods.










