
Project: New Våler Church
Designed by CEBRA
Location: Hedmark, Norway
Website: www.cebra.info
Coming from Cebra is their church design for the New Våler Church in Norwegian town of Hedmark. Along with more images read the description after the jump:
From the Architects:
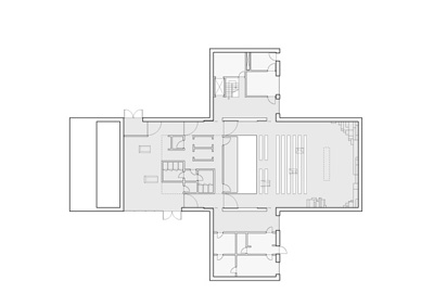
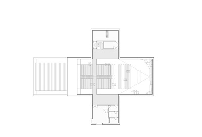
This is our competition proposal for the New Våler Chruch in Norway, replacing the old wooden church, which burned down in 2009. Our proposal is based on the most widespread symbol for the Christian curch: the cross. When the cross shape is tilted and the church's roof forms a sloping plane, the building volume appears as a stairwell or a pictorial metaphor for the stairway to heaven. Light is a fundamental element in our proposal – both in the plan layout and the orientation of the church and as a spacial and atmospheric medium for artistic expression. The church is orientated in such a way that it uses light – internally as well as externally – for the staging of cultural and chruch events.















